Moderná rekonštrukcia úzkeho mestského domu

Casa 7 × 37 je súkromný prázdninový dom v brazílskom São Paule, ktorého vlastníkom je Arquitetura CR2 bol kompletne prestavaný. the moderná rekonštrukcia bola dokončená v roku 2013. Dvojici sa narodila malá dcéra a čakali druhé dieťa, a tak rodina nechcela tráviť hodiny šoférovaním cez víkend mimo mesta. Namiesto toho sa rozhodli nechať postaviť druhý dom v meste ako prázdninový dom, len pár kilometrov od svojho domova. Zákazníci chceli kompaktný dom s flexibilnými priestormi, kde sa vnútorné a vonkajšie priestory navzájom spájajú. Bazén, zeleň a gril boli pre nich veľmi dôležité, pretože rodina žije v byte.
Moderná rekonštrukcia kompaktného domu v Sao Paolo

Otvorený obývací priestor je na prízemí a je viacúčelovou miestnosťou susediacou s dvorom. Sivý záhradný múr zdobí dekoratívny panel od nadácie Athos Bulcão. Ide popri bazéne a vzdáva hold modernej brazílskej architektúre. Zákazník s umelcovými dielami vyrastal. Kuchyňa, obývačka a jedáleň sú otvorené. Kuchynka obsahuje všetky skrinky, spotrebiče a riad, pričom stena na druhej strane je úplne presklená. Hojné používanie sklenených posuvných dverí od podlahy k stropu si tiež vyžadovalo dobrú ochranu súkromia prostredníctvom vysokých stien a drevených zásten.
Moderná renovácia a optimálne využitie priestoru

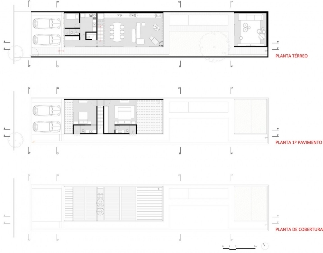
Veľkosť stavebnej plochy (7 × 37 metrov) naznačovala racionálnu architektúru, ktorá priestor optimálne využíva, preto sa architekti rozhodli pre kovovú konštrukciu a dom bol postavený len za osem mesiacov. Výsledkom je dom s rozlohou 185 metrov štvorcových, ktorý sa zdá byť väčší, ako v skutočnosti je. Moderná rekonštrukcia umožnila rodine maximálne si užiť vonku.
























