Luxusný dom v Hongkongu prináša Ferrari do obývačky

Hongkong je s 85 000 eur za meter štvorcový metropolou s druhou najdrahšou rezidenčnou nehnuteľnosťou na svete. Jeden meter štvorcový tam stojí rovnako ako celý byt v Nemecku. Preto nie je prekvapujúce, že bohatstvo sa tu nemeria z hľadiska drahých automobilov a jemných hodiniek, ale z hľadiska priestoru. Kto veľký Luxusný dom v Hongkongu určite je veľmi bohatý.
Luxusný dom v Hongkongu – priestranný a minimalistický

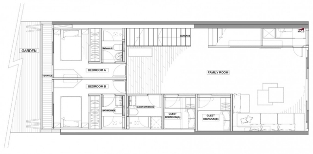
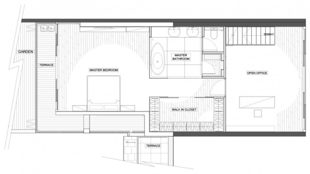
Nedostatok miesta predstavuje pre interiérových dizajnérov veľké výzvy, takže sa vždy pokúšajú implementovať nové, priestorovo úsporné riešenia. Príkladom toho je táto luxusná vila v hongkonskej štvrti Sai Kung, ktorej izby sú rozložené na niekoľkých úrovniach. Cieľom je – flexibilný, otvorený život. Nehnuteľnosť navrhla miestna architektonická kancelária Milimetrový dizajn interiéru navrhnuté a zrealizované. Tento dom má aj jednu z najchladnejších garáží na svete, pretože auto stojí v strede obývačky. V tomto prípade je to jasne červené Ferrari. Veľa skla a lesklých povrchov, ako je brúsená oceľ, spôsobuje, že dom pôsobí otvorene. Nábytok je veľmi minimalistický, ale obsahuje niektoré veľkolepé prvky, ako je nízka oceľová kuchyňa a rozťahovací jedálenský stôl. Keď sa nepoužíva, môže byť úplne zapustený do zeme.
Luxusný dom v Hongkongu


Sklenená garáž s vysneným autom uprostred obývačky

Veľkorysé sklenené a oceľové povrchy

plávajúce čierne schody na vrchol

modulárna pohovka

hlboká luxusná kuchyňa

očarujúca oceľová kuchyňa












