Flexibilné steny a okná od podlahy k stropu v modernej modulárnej obytnej budove

Moderný rodinný dom v austrálskom Melbourne porušuje myšlienku modulárnej stavby. Je domácky, dizajnovo moderný a skutočne funkčný. Interiér je plánovaný úplne otvorený a iba všetkými sklenenými a flexibilné steny rozdelené. Okná od podlahy až k stropu a balkónové dvere ponúkajú výhľad von a slúžia ako neviditeľná hranica medzi vnútorným a vonkajším priestorom.
Flexibilné steny a okná od podlahy k stropu-obytná budova kontajnerovej konštrukcie v Austrálii

Moderný dom sa nachádza v strede pozemku a ponúka prednú a zadnú záhradu. Predzáhradka je otočená do ulice a vyzerá ako typická moderná skalka – s kaktusmi, kamienkami a inými rastlinami milujúcimi slnko. Do interiéru vedie záhradná cesta z drevených dosiek, ktorá rozdeľuje záhradu a samotný dom na dve časti.
Flexibilné steny a okná od podlahy k stropu v modernej modulárnej konštrukcii

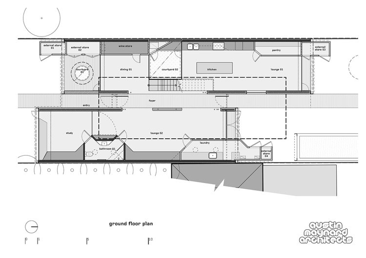
Chodba umiestnená v strede domu a záhrady hrá úlohu stredovej osi a je dôležitým prvkom dizajnu. Obývacia časť sa rozprestiera na oboch stranách a na horné poschodie vedú schody, aj keď sú tieto na chodbe.
Strom splýva so stenami ako druh vnútornej záhrady

V tomto dome nemôžete povedať, čo je vo vnútri a zvonku. Miestnosti a priestory sa spájajú, sklenené steny a okná od podlahy po strop nič neskrývajú.
Flexibilné steny a okná od podlahy až k stropu ponúkajú nádherný výhľad na dvor

Posuvné dvere na terasu a okná od podlahy k stropu poskytujú prístup do každej časti konštrukcie kontajnera

Chodba hrá úlohu stredovej osi

Flexibilné steny a sklenené steny od podlahy až k stropu v obývacej izbe

Moderná otvorená kuchyňa celá v bielom

Biela kuchyňa v minimalistickom štýle

V drevenom obklade stien sú ukryté flexibilné steny

Flexibilné steny zostávajú neviditeľné a šetria miesto

Študujte s terasovými dverami od podlahy po strop a pozerajte sa von do ulice

Útulná terasa v zadnej záhrade moderného rodinného domupoužíva

Do spální na hornom poschodí vedú schody

Spálňa s výhľadom na zadnú záhradu

Flexibilné steny-okná od podlahy až k stropu a balkónové dvere

Plány a pôdorysy modulárnej obytnej budovy




* Projekt a návrh do Austin Maynard Architects
