Ekologický a inovatívny betónový dom na predmestí Madrid

A Betónový dom na predmestí vás zrazu zaujme svojou masívnou konštrukciou a grandióznou konštrukciou. Na jednej strane predstavuje vzťah k prírode, ktorý existuje už stáročia, na strane druhej je snaha moderných ľudí využívať technologický pokrok. Betónový dom je príkladom mestskej, ekologickej a inovatívnej architektúry zároveň.
Betónový dom na predmestí Madridu – moderná fasáda

To Betónový dom na predmestí navrhol architekti A-Cero. Profesionálni architekti a dizajnéri, ktorí pracujú pre obľúbené španielske štúdio, predstavili svoj návrh. Projekt je venovaný veľkým rodinám, ktoré potrebujú priestranný obývací priestor, kde by mohli tráviť čas spoločne. Betónový dom sa nachádza neďaleko Madridu a rozprestiera sa na úžitkovej ploche 5 000 metrov štvorcových. Dom je jeden príbeh. Nízka stavba má veľký vonkajší priestor s útulnou záhradou, vonkajším bazénom a garážami.
Betónový dom na predmestí – interiér

To Betónový dom na predmestí mesta Madrid púta pozornosť všetkých – moderný architektonický štýl a koncept šetrný k životnému prostrediu spájajú moderné materiály s udržateľnou výstavbou. Prvá vec, ktorú si na architektúre všimnete, je bezproblémové spojenie medzi betónovými stenami a vegetáciou. Farebná schéma je prevažne sivá a umožňuje nádhernému prostrediu, aby si prišlo na svoje. Nové okná otvárajú veľké okná a interiér sa vďaka tomu javí jasnejší. Zaujímavé kusy nábytku a výstredné dekorácie dodávajú budove príjemný vzhľad. Skrinka, obývačka a spálne majú výhľad na krásnu záhradu.
Betónový dom so zaujímavým nábytkom

Vnútri od Betónový dom na predmestí od A-Cero Obzvlášť pôsobivá je priestrannosť a veľké množstvo voľného miesta, ktoré je k dispozícii. Všetky izby sú útulné a pohodlné, ale moderné. Farebná schéma v interiéri bola obohatená o čierne, strieborné a biele akcenty.
Od Abigail
Zasadená fasáda-moderná architektúra

Moderná čiernobiela jedáleň

Skrinka s krbom

Luxusná spálňa červená stena

Tmavosivá kúpeľňa

Moderné barové osvetlenie

Luxusný dom domáceho kina Madrid

Exkluzívne garážové LED osvetlenie

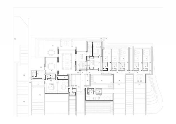
Plán betónového domu

