Drevený kryt na terasu – moderný dizajn z Austrálie

Krytie terasy umožňuje vychutnať si čerstvý vzduch vonku aj v zlom počasí. Austrálska architektonická spoločnosť FMD má dom s pozoruhodnými budovami Drevená strešná krytina a moderný interiérový dizajn. Inovatívna konštrukcia pripevnená k domu prepúšťa veľa svetla zo severu a zároveň chráni pred slnkom na západe.
Drevená strešná krytina na terasu s krásnou perspektívou

Veľa dreva, pohodlný záhradný nábytok a zelené rastliny vytvárajú príjemnú atmosféru. Terasa susedí s domom v obdĺžnikovom tvare a so stupňovitým schodiskom dodáva elegantnú eleganciu.
Strecha strechy drevenej terasy je vyrobená z plexiskla

Terasa sa vyznačuje tým, že pôdorys pripomína trojuholník. Drevené stĺpiky krytu terasy sú umiestnené asymetricky po stranách trojuholníka a riadia slnečné svetlo. To vytvára pocit perspektívy. Zastrešenie terasy je také atraktívne, že sa stalo prízvukom v samotnej záhrade.
Drevená krytina na terasu – priehradová konštrukcia nad relaxačným kútikom pre viac tieňa

Priestor pre rekreáciu je pod mriežkou z rovnobežných lamiel, ktoré rámujú širokú stranu stavby. Poskytujú hustejší tieň nad pohodlným záhradným nábytkom, a tak môžete v horúcich dňoch dlho relaxovať vonku.
Geometrické tvary a klasické farby v obývacej izbe

Dom má aj moderný vzhľad vo vnútri. V kuchyni prevládajú hranaté, jednoduché základné tvary. Pracovná doska s čiernym mramorovým vzhľadom a lichobežníková stenová jednotka sú prízvukom. Ostatné kuchynské skrinky, ktoré možno počítať ako súčasť minimalistického štýlu, sú navrhnuté v kontrastných farbách.
Hra kontrastov v kuchyni s nábytkom v minimalistickom štýle

Drevená podlaha pôsobí teplým dojmom a pomocou niekoľkých drevených akcentov je vytvorená harmónia, aby kuchyňa získala dokonalý vzhľad. Barové stoličky s kovovým rámom pripomínajú industriálny štýl a perfektne sa hodia k nábytku v bielej, čiernej a drevenej verzii..
Drevené hrany podčiarkujú nápadný dizajn knižnice

Dizajn obývačky opakuje myšlienku perspektívy a jednoduchých geometrických tvarov. Čierna stena sa spája do vstavanej knižnice, ktorá prichádza za roh miestnosti k ďalším dverám na chodbe.
Žltá polička pod televízorom vyzerá ako krb

Obývačka je vlastne na druhom konci chodby. Všetky rohy sú optimálne využité: na druhej strane čiernej steny je vstavaný pracovný stôl s policami nad ním.
Čierne poličky na knihy a vstavané skrine pokrývajú celú stenu chodby

Minimalistický vzhľad je ľahké dosiahnuť s toľkým počtom úložných priestorov a skriniek na chodbe. Zelené dvere vedú do kúpeľne, ktorá je v priestore medzi kuchyňou a obývačkou.
Zrkadlá po celej šírke steny kúpeľňu opticky zväčšujú

Čiernobiely motív splýva aj s kúpeľňou. Dlaždice s voštinovým vzorom sú skvelým pozadím, na ktorom môže drevené umývadlo vyniknúť ako akcent.
Na rozdiel od zariadenia má fasáda klasický vzhľad

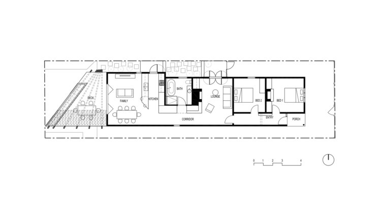
Plán domu s elegantným dreveným krytom na terasu môže ilustrovať, ako sú miestnosti a nábytok umiestnené

