Dom z masívneho betónu – otvorená konštrukcia maximalizuje svetlo v interiéri

A masívny betónový dom má mnoho výhod – dá sa dobre izolovať, je mimoriadne stabilný a odolný. Architekti zo SAOTA prepracovali tradičný solídny dom a vytvorili svetlé a útulné prostredie vďaka rozsiahlemu používaniu skla..
Dom z masívneho betónu sa otvára do záhrady

Úžasný masívny betónový dom, vznikli v dôsledku spolupráce medzi VIVID Architects a SAOTA, zaujme svojim kreatívnym konštrukčným konceptom. Dom je eklektickou kombináciou tradície a moderny. Tradičná fasáda, ktorú poznáme z koloniálneho štýlu, je v projekte nanovo definovaná. Geometrické tvary stavebných objemov sa uvoľňujú vďaka rozsiahlemu použitiu skla. Veľké okná od podlahy až k stropu prepúšťajú do interiéru slnečné svetlo. Posuvné sklenené dvere vytvárajú bezproblémové prepojenie záhrady a domu. Otvorená konštrukcia pozostáva z niekoľkých stavebných modulov, ktoré rámujú záhradu. Mnoho strešných terás a terás dodáva budove sochársky vzhľad s mnohými akcentmi.
Dom z masívneho betónu s veľkou príťažlivosťou

Hneď ako vojdete do solídneho domu, návštevníka fascinujú svetlé a priestranné izby. Chodba rozdeľuje obývací priestor na dva. Nábytok je jednoduchý, ale veľmi elegantný. Podobne ako pre vonkajšiu oblasť, aj pre vnútornú oblasť sú charakteristické geometrické tvary. Vstavaný nábytok s minimalistickou konštrukciou a v puristických farbách dopĺňa celkový koncept. Nepriame osvetlenie vytvára v interiéri akcenty. Vďaka jemným tkaninám a textúram interiér pôsobí luxusne. Absolútnym vrcholom v obývacej časti je priestranná jedálenská časť – rustikálny jedálenský stôl bol kombinovaný s koženým nábytkom a krištáľovým lustrom. Je to obrovský betónový dom pre veľkú rodinu, ktorá rada trávi voľný čas s priateľmi.
Útulné terasy a veľké balkóny

Chodba zaliata svetlom

Pohodlný záhradný nábytok – sedačky a lavice

Záhradka s betónovým chodníkom

minimalistické záhradné jazierko

Jedáleň je kombináciou rustikálneho a moderného nábytku

Obývacia izba v bielej farbe

Stenu zdobia umelecké diela

Okná od podlahy po strop

Spálňa s posuvnými sklenenými dverami

Kúpeľňa s kamienkami

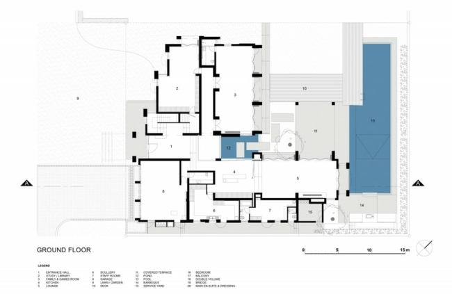
Blueprint – jednoposchodový dom

