Dom so stredomorskými a teakovými akcentmi v modernom štýle

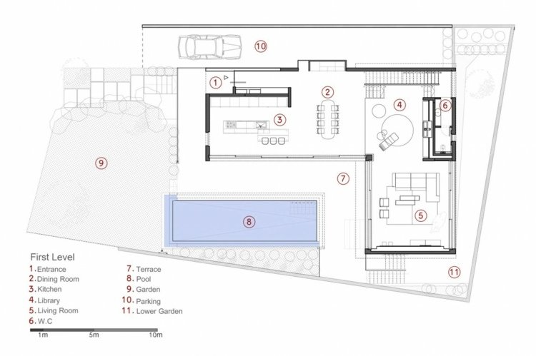
Tento vysnívaný domov s domovom s Stredomorské a teakové akcenty pozostáva hlavne z betónu. K dispozícii sú tiež hliníkové okná, parkety v interiéri a teakové drevo na slnečnej terase. Nachádza sa v izraelskom Tel Avive podľa návrhu architektov Paz Gersh Architects. Dom so stredomorskými a teakovými akcentmi má tvar L a ohraničuje bazén. Záhrada je rozdelená na tri oblasti, z ktorých každá je navrhnutá iným spôsobom. Hlavnou témou je stredomorský štýl.
Stredomorské a teakové akcenty vo vonkajšej časti domu

Obývacia časť sa skladá z veľkých okien, ktoré dovnútra prepúšťajú veľa svetla. Nájdete tu obývaciu izbu, kuchyňu s jedálenským kútom a malú knižnicu. Zo všetkých týchto oblastí máte vďaka veľkým oknám nádherný výhľad na bazén a záhradu so stredomorskými a teakovými akcentmi. Spálne sú zase rozložené na dolnom poschodí a na druhom poschodí. Z tohto dôvodu hrá podlaha s obývacou časťou úlohu prechodu. Čo sa týka tíkových akcentov, okrem už spomínanej podlahy v oblasti bazéna sú v druhom poschodí aj účinné rolety, ktoré je možné otvárať a zatvárať otáčaním okolo vlastnej osi..
Stredomorské a teakové akcenty dodávajú domu čaro

Tri oblasti v záhrade domu so stredomorskými a teakovými akcentmi sa líšia svojou úpravou terénu, pričom všetky predstavujú stredomorský štýl. Pred hlavnou spálňou na druhom poschodí je atraktívna strešná záhrada, kde sa rastliny pestujú v oceľových kvetináčoch. A spodné poschodie je tiež ozdobené skvelou zeleňou. Hlavnú úroveň domu so stredomorskými a teakovými akcentmi, na ktorej sa nachádza aj obývacia časť, tvorí okrem iného svieža záhrada s eukalyptom.
Obývacia izba s výhľadom na stredomorskú záhradu

Knižnica s farebným akcentom v podobe orgovánového kresla

Pôvodná nástenná jednotka s krbom v dome so stredomorskými a teakovými akcentmi

Moderná kuchyňa s výhľadom na stredomorskú záhradu

Dom so stredomorskými a teakovými akcentmi – schody s oceľovým zábradlím

Druhé poschodie s teakovými žalúziami a stredomorskou strešnou záhradou

V spálni sú teakové rolety s výhľadom na stredomorskú záhradu

Teakové rolety sa otáčajú okolo vlastnej osi










Dizajn od Paz Gersh Architects.
