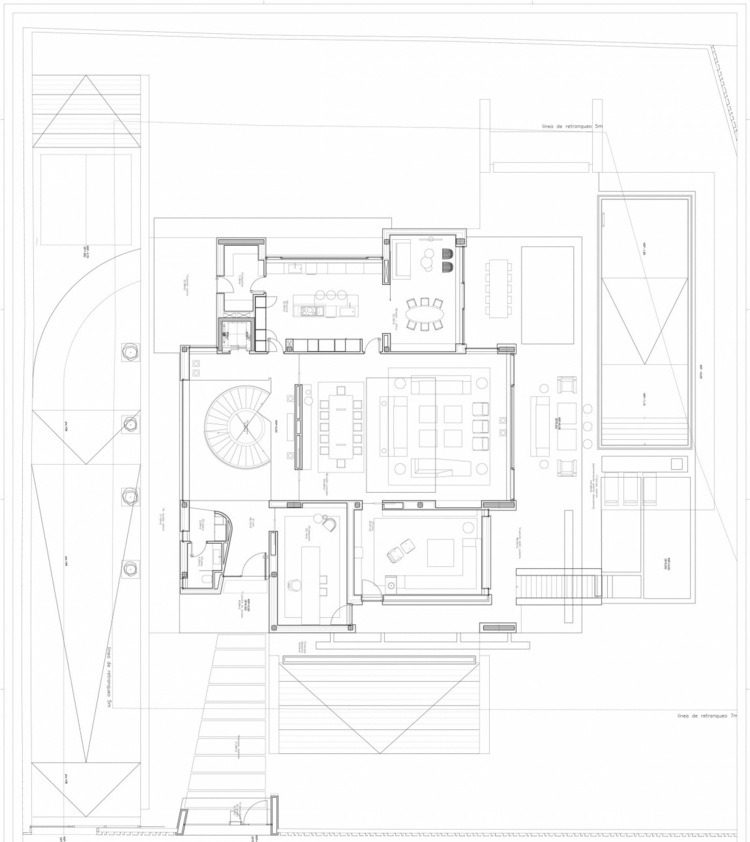
Dom s moderným točitým schodiskom a minimalistickým dizajnom

Toto moderné Dom s moderným točitým schodiskom zaujme už svojou vonkajšou fasádou. Je to preto, že má jednoduchý, ale mimoriadne atraktívny dizajn z kamenných dosiek, ktoré sú úhľadne a priamo spojené dohromady. Čierne akcenty vo vysokom lesku sú tiež zaujímavými detailmi. Príjazdová cesta má rovnaký jednoduchý dizajn ako fasáda. Je vyrobený z rovnakého materiálu, pričom spoje sú vyplnené bielymi kamienkami. Záhrada je tiež jednoducho navrhnutá. Ozdobí ho veľký zelený trávnik a niekoľko kríkov a kríkov. K dispozícii je tiež atraktívny veľký bazén s posedením a salónikom.
Dom s moderným točitým schodiskom – jednoduchá fasáda vo svetlo šedej farbe

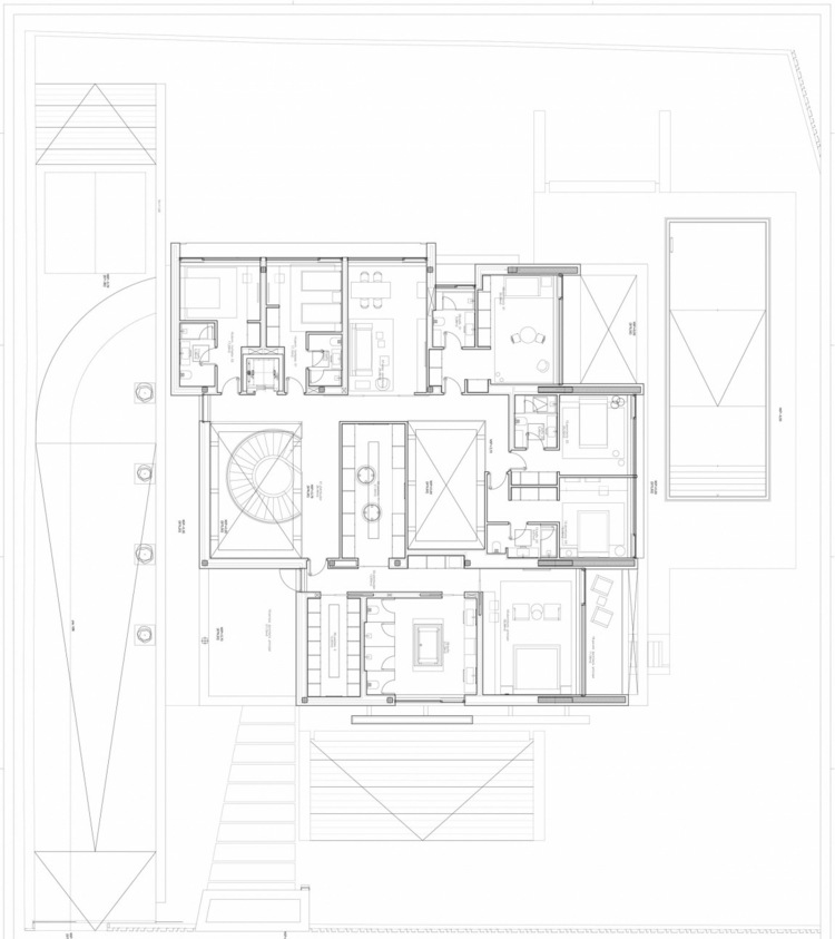
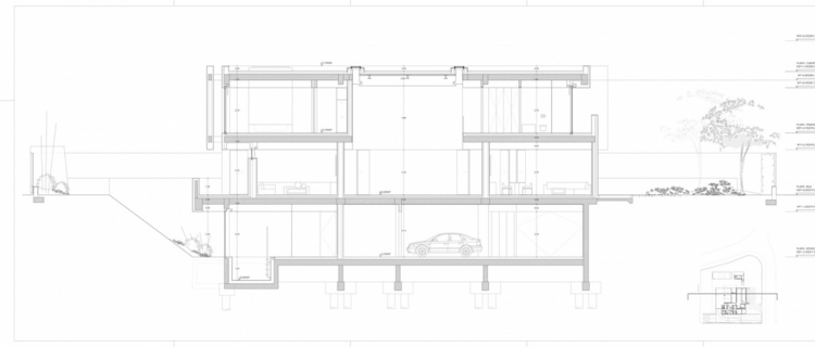
Vnútri nie je dom o nič menej moderný s moderným točitým schodiskom. Nábytok, ako je jedálenský stôl, príručný stolík alebo kuchynské skrinky, je striedavo biely alebo čierny s lesklými sklenenými alebo lesklými povrchmi. Kúpeľňa má kúpeľňovú konzolu vyrobenú z vysoko lesklej čiernej farby a ladiacu voľne stojacu vaňu originálneho tvaru. Spálňa je malou výnimkou. K dispozícii je posteľ s čalúneným rámom vyrobeným zo sivej kože. Všetky poschodia domu sú prepojené atraktívnym točitým schodiskom. Dom má celkom tri podlažia s moderným točitým schodiskom, v najnižšom je umiestnená aj garáž a je v podzemí.
Dom s moderným točitým schodiskom – bazén

Terasa domu s posedením

Dom so salónikom pri bazéne

Dom s moderným točitým schodiskom a nábytkom zo skla a vysokého lesku

Dom s modernou kuchyňou v bielej a béžovej farbe

Dom s moderným točitým schodiskom – kuchyňa s vysokým leskom a kuchynským ostrovom

Dom so sivými farbami v spálni

Moderná detská izba s mapou sveta na stene


















Dizajn: A-cero.
