Dom s drevenou fasádou zapadá do vidieckej oblasti

Nachádza sa vo vidieckej oblasti neoddeliteľnej od mesta Sao Paulo v Brazílii Dom s drevenou fasádou architektonickej kancelárie MK27 dokonale zapadá do nádhernej zalesnenej krajiny.
Dom s drevenou fasádou – vynikajúci nový projekt z kancelárie architektov MK 27

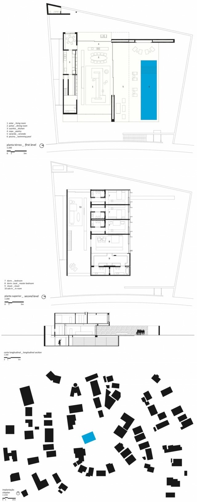
Kancelária architektov MK 27 je v Brazílii už dlho známa svojimi modernými minimalistickými projektmi. Tento dom fascinuje aj kompaktným stavebným objemom v podobe kocky. Moderná architektúra je mimoriadne stabilná – konštrukcia je betónová a fasáda bola potom obložená drevom. Rodinný dom má dve poschodia-prízemie ponúka výhľad na odľahlú záhradu-veľké posuvné sklenené dvere od podlahy k stropu vytvárajú bezproblémové spojenie medzi priestranným obývacím priestorom a útulným posedením vo vonkajšom priestore. Dlhý bazén vás pozýva na ochladenie v teplých letných dňoch a niekoľko ležadiel ponúka možnosť relaxácie po dlhom dni v práci. Druhé poschodie sa otvára aj do záhrady – fasáda je bohato presklená a keď sú drevené žalúzie otvorené, slnečné svetlo prenikne do interiéru. Akonáhle však majitelia domov chcú premietnuť svoj súkromný priestor z vonkajšieho pohľadu / na poschodí sú spálne a kúpeľne /, musia jednoducho zatiahnuť žalúzie.
To Dom s drevenou fasádou je striedmo, ale veľmi štýlovo zariadený. Nábytok je v neutrálnych farbách a fascinuje jasnými líniami a moderným dizajnom. Priestranný obývací priestor ponúka kuchyňu, jedálenský kút a pohodlné posedenie. Veľký poličkový systém slúži ako predel miestnosti a opticky oddeľuje schody od obývacej časti. Za poličkou s knihami je absolútny vrchol – priestranná vínna pivnica s exkluzívnou zbierkou vín – samozrejme s druhmi vína z Brazílie.
Dom s drevenou fasádou s krásnou odľahlou záhradou

Cez hojne zasklené fasáda dom sa otvára do záhrady

Vnútorné a vonkajšie priestory sú bezproblémovo prepojené

Na rozdiel od drevenej fasády je záhradná stena z prírodného kameňa

Moderná minimalistická architektúra

Vytvorte si útulné vonkajšie posedenie

Štýlové zariadenie a dekorácia s modernými fotografiami












