Zimná chata v modernom štýle na dovolenku v Bosne

Čo môže byť krajšie ako sedieť pri krbe po lyžiarskom výlete alebo prechádzke na snehu, aby ste sa zahriali a sledovali sneh a snehové vločky cez okno. Všetko v tomto zaujímavom Zimná chata možné. Nachádza sa v Bosne a Hercegovine a v zime slúži ako lyžiarska chata.
Zimná chata na lyžovačku

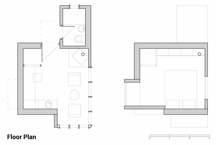
Dom na zimu vo forme chaty je vyrobený z dreva, ako by sa od chaty dalo očakávať, a má veľkosť 24 metrov štvorcových, ktoré sa rozprestierajú na dvoch poschodiach. Na prvom poschodí je obývacia izba s malou kuchynkou a umývadlom, kancelárska časť a krb, ktorý vykuruje celú chatu. Z prízemia sa vďaka veľkým okenným čelám otvára úchvatný výhľad na zimnú krajinu, ktorý si môžete vychutnať pri šálke čaju alebo kávy pri krbe. Kúpeľňa sa nachádza mimo chaty, a preto je vlastne rozšírením zimného prázdninového domu.
Dom na zimu obklopený rozprávkovou lesnou krajinou

Na druhé poschodie v zimnom prázdninovom dome sa dostanete po priateľskom rebríku. V podkroví je priestor na spanie s pohodlnou posteľou. Vstavaná polica ponúka priestor na uloženie rôznych predmetov. Spací priestor má tiež svoje vlastné okno. Tam bol navrhnutý útulný kútik na čítanie z útulných vankúšov, ktoré vás vďaka výhľadu môžu tiež jednoducho pozvať do sna.
Zimný prázdninový dom v modernom štýle

Ako už bolo spomenuté, drevo bolo použité na stavbu chaty ako zimného rekreačného domu. Drevo však hrá dôležitú úlohu aj v interiéri. Podlaha je laminátová, steny obložené preglejkou. Pretože je tu málo miesta, ako štýl bol zvolený minimalizmus. To dáva izbám jasné línie, ktoré sa odrážajú aj v nábytku, a každá izba pôsobí väčším dojmom. Preplnenému interiéru sa tak zabránilo.
Obývacia časť v zimnom prázdninovom dome

V obývacej časti zimného domu je pohodlná stolička so stoličkou. Tam môžete zdvihnúť nohy a užívať si rozprávkovú lesnú krajinu, kým sa zohrejete pri ohni. Pekným akcentom dreveného nábytku je kožušina používaná ako koberec na podlahe. Hneď vedľa vstupných dverí sú praktické háčiky na zavesenie bundy a priestor na uloženie lyžiarskeho vybavenia.
Dom na zimu s vlastným krbom

Malý roh komína bol tiež navrhnutý tak, aby bol atraktívny. Skladá sa z moderných, sivých kachlí v malom formáte a predstavuje zaujímavý kontrast k drevu. Kmeňové drevo je k dispozícii hneď vedľa krbu, takže v prípade potreby ho môžete kedykoľvek znova ohriať. Vďaka malému námestiu sa súčasne vyhrieva priestor na spanie na hornom poschodí.
Kuchyňa v zimnej chate

Kuchyňa v zimnom rekreačnom dome je malá, ale napriek tomu ponúka dostatok priestoru na prípravu rôznych vecí a v skriniach je tiež veľa úložného priestoru. Na dizajne nie je zaujímavá len jednoduchosť a použitie ľahkého, prírodného dreva. Je tiež zrejmé, že kuchyňa akoby plávala vo vzduchu.
Prázdninová chata s kancelárskymi priestormi

Dom na zimu má hneď vedľa kuchyne malú kancelársku plochu, ktorá je ideálna na čítanie a dokonca aj na prácu. Moderná stolová lampa poskytuje dostatočné svetlo. Ak teda získate prácu v krátkom čase, môžete ju jednoducho vykonávať v príjemnej atmosfére.
Priestor na spanie v zimnom prázdninovom dome

Spací priestor v zimnom prázdninovom dome je tiež navrhnutý ako malý. Práve to mu však dodáva špeciálne čaro a istú útulnú atmosféru. Hneď ako sa zobudíte, vidíte zasnežený les a ak nemôžete hneď zaspať, máte možnosť pomazliť sa v čitárskom kútiku a prečítať si knihu.
Drevená chata s kútikom na čítanie v priestore na spanie





Návrh od Armina Mešica z FO4A Architecture.
