Moderný dizajn dovolenkového domu v Anglicku zaisťuje relaxáciu a pohodlie

Toto moderné Dizajnový dovolenkový dom bolo vyrobené architektonickým štúdiom JVA (Jarmund / Vigsnæs Architects) navrhnutý v spolupráci s Mole Architects. Rekreačná vila sa nachádza južne od Thorpeness, dediny v anglickom Suffolku. Táto nehnuteľnosť sa nazýva Dunový dom a môže ubytovať až 9 osôb. Bola dokončená v roku 2011 a dá sa prenajať na celý rok za minimálne 760 libier na štyri dni.
Dizajnový dovolenkový dom v Anglicku s fantastickou polohou a modernou architektúrou

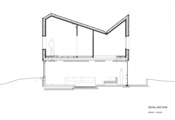
To Dizajnový dovolenkový dom je na pobreží Suffolku na mieste starej budovy. Dovolenkovú vilu je možné prenajať si kedykoľvek počas roka a zaujme modernou architektúrou uprostred tradičnej krajiny. Architektom je dovolené urobiť dizajn moderným, ale mali by dodržiavať zásady tradičnej miestnej architektúry. Vzhľad dediny bol teda zachovaný jednotný a harmonický. Strecha svojimi geometrickými tvarmi pripomína typický penzión s romantickou atmosférou.
Dizajnový dovolenkový dom so zaujímavou kombináciou stavebných materiálov

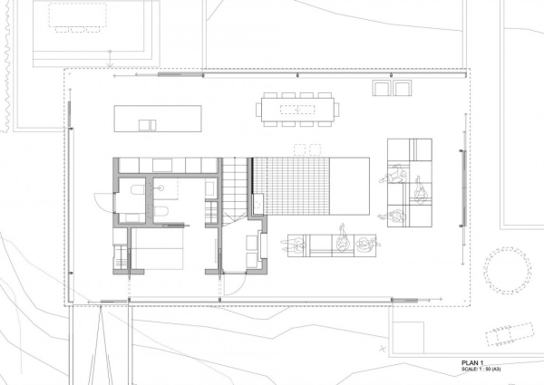
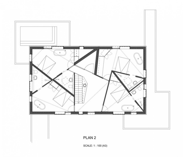
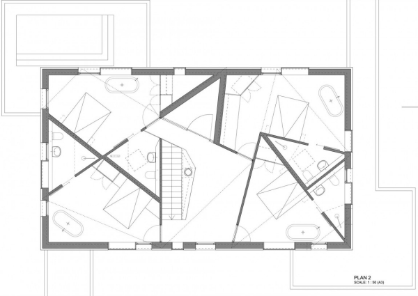
Prízemie viditeľne kontrastuje s hornou časťou domu. Obývaciu izbu na prízemí zo všetkých strán obklopili sklenené posuvné dvere, ktoré tiež umožňujú nádherný panoramatický výhľad do všetkých strán. To Dizajnový dovolenkový dom pokiaľ ide o stavebné materiály, vykresľuje jasnú hranicu medzi prvým a druhým poschodím. V spodnej časti vily bolo použité hlavne sklo, hliník a betón, druhé poschodie a plocha strechy sú prevažne z masívu..
Priestranná obývacia izba v pastelových odtieňoch

Útulné posedenie s krbom

Moderný jedálenský kút s panoramatickým výhľadom

Kuchyňa s minimalistickým dizajnom

Posedenie s moderným interiérom

Spálňa s krásnym výhľadom

Spálňa s vaňou

Moderná rekreačná vila s krásnou krajinou

Jasná hranica medzi prízemím a prvým poschodím

Bočný pohľad na moderný prázdninový dom

Ideálne miesto pre relaxáciu

Vila s minimalistickou architektúrou














