Sklo a svetlo vypĺňajú moderný radový dom v Santa Cruz

A moderný radový dom od Vybavenie Olivares Arquitectos upútal našu pozornosť. Nachádza sa v Santa Cruz de Tenerife a je navrhnutý s ohľadom na nasledovné:
Úprava hlasitosti v obidvoch oddieloch. Stavebné predpisy povoľujú tri poschodia, takže stredový radový dom je vyšší ako ostatné. Najvyššie poschodie je zapustená fasáda a umožňuje slnečnému žiareniu preniknúť do domu prostredníctvom strešného okna. Architekti sa rozhodli upraviť výšku budovy tak, aby zodpovedala domu vľavo, zatiaľ čo priečka vpravo je pokračovaním fasády tak, aby reagovala na menší dom vpravo.
A moderný radový dom na Kanárskych ostrovoch

Dosť svetla. Okrem toho, že je moderný radový dom na úzkej ulici, má najlepšiu perspektívu s výhľadom na okolité hory. Malý dvor na juhovýchode poskytuje dostatok prirodzeného svetla. Obývacia časť je usporiadaná tak, aby bolo prirodzené svetlo neobmedzené. Prostredníctvom svetlíkov a sklenených tvárnic sa dostane tak ďaleko do kúpeľní a verejných priestorov a sklo na fasádach a v interiéri prispieva k ich šíreniu.
A moderný radový dom „C&E dom “

flexibilita. Chceli sme, aby bol dom adaptabilný: na klímu v Santa Cruz, na rôzne možnosti prístupu (spálňa je otvorená a plne prepojená so schodiskom a chodbou), na rodinné aktivity (garáž je tiež detské ihrisko), na voľný pohyb pre starších ľudí (v dome je aj výťah).
rastliny. Najmä dlaň pred domom a na stenách vnútorných nádvorí, kde sa majú popínavé rastliny omotať okolo kosoštvorcovej siete. Vegetácia nepochybne prispieva k podstate tohto domu.
Schodisko

Sklenený zábradlie

Sklenené steny a zábradlia

Fasáda domu

garáž

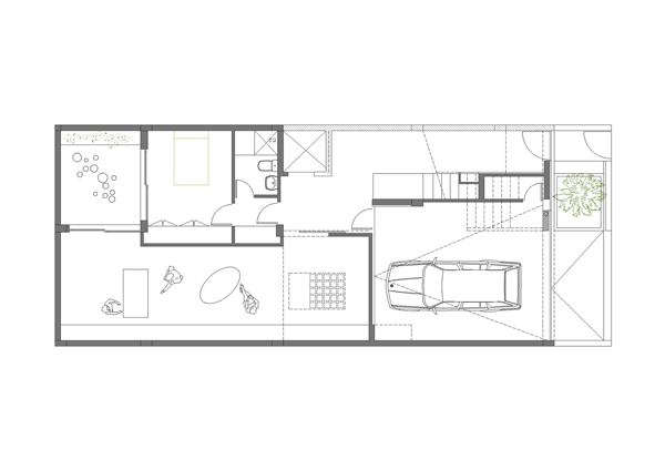
Prízemie a garáž

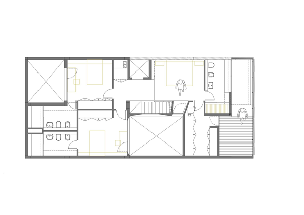
druhé poschodie
tretie poschodie
v priereze 
