Poľský plastový dom – vzrušujúci dizajn domu z Poľska
od Moomoo Architects

Moomoo Architects jeden taký má Plastový dom vyrobené tak, aby bolo moderné a zároveň zachovalo tradície vidieckej architektúry. Tento zaujímavý dom sa nachádza v poľskej Lodži a je navrhnutý ako tradičný poľský dom, ale veľmi neobvykle uzavretý zhora nadol v plastovom izolačnom materiáli s názvom Thermopian. Fasádny materiál (termopian) je preferovaný pre svoje dobré izolačné vlastnosti a akustiku. Materiál ponúka veľa možností a je k dispozícii v mnohých farbách. Používa sa predovšetkým v strešných plášťoch, ale ako ukazujú architekti Moomoo, môže mať oveľa širšie využitie. Celkový pohľad na Budova vyzerá trochu drsne. Tmavá plastová fasáda vytvára pocit, že to nie je a Plastový dom, je to iný typ budovy. Okien je na súčasný dom málo a sú dosť malé a tvar sa tiež líši od typického moderného domu. Ale to je na súčasnej architektúre to najlepšie – môže mať všetky tvary a naberá rôzne inovatívne nápady. To je práve to Nehnuteľnosť predstavuje – jedinečný nápad a moderný dizajn domu.
vzrušujúci plastový dom z Poľska

To Dom bol postavený podľa miestnych zákonov. Vyžaduje, aby bol dom postavený v súlade s stavebným limitom. Tento moderný dom má jednoduchý obdĺžnikový plán s jediným neobvyklým doplnkom – stenou, ktorá sa rozprestiera od jednej z fasád pod ostrým uhlom, takže dizajn vyzerá divne..
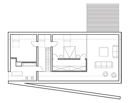
Pôdorysy domu ukazujú dve rôzne úrovne. Prvá úroveň pozostáva zo vstupnej haly a chodby, ktorá vedie do kombinovanej kuchyne. Obývacia časť sa otvára na drevenú terasu. Vnútorné schodisko stúpa na druhé poschodie, kde sa nachádzajú dve spálne s veľkou kúpeľňou. Táto úroveň iba čiastočne pokrýva dolnú úroveň, oblasť nad chodbou a obývaciu časť necháva otvorenú ako vzdušný priestor.
Od K.H. Christovej




