Plážový dom s ekologickým dizajnom pre udržateľné bývanie

Toto moderné Plážový dom s ekologickým dizajnom bol z architektonického štúdia Pb Elemental Navrhnuté v Seattli. Budova sa rozprestiera na 194 metroch štvorcových a bola vyvinutá pre InHaus Development. Plážový dom má dve poschodia a bol ohodnotený ako LEED Platinum. Nachádza sa v White Rock, Britská Kolumbia, Kanada a je k dispozícii na predaj na realitnom trhu za 1,35 milióna dolárov.
Plážový dom s ekologickým dizajnom a udržateľným plánovaním budov

To Plážový dom s ekologickým dizajnom získal systém hodnotenia LEED Platinum, ktorý vyžaduje vysokú úroveň energetickej účinnosti a trvalo udržateľné plánovanie budov. Dom bol dokončený na jar 2012 a odvtedy je pripravený na obývanie. Moderný dizajn ukazuje nielen kreatívne myslenie, ale aj veľa efektivity a praktickej implementácie zelených technológií.
Plážový dom s ekologickým dizajnom a moderným interiérom

To Plážový dom s ekologickým dizajnom má 3 spálne, 4 kúpeľne a priestrannú štúdiu. Dom sa nachádza 200 metrov od pláže a zo širokej drevenej terasy sa ponúka nádherný výhľad na okolie. Interiér bol nielen veľmi pohodlný a praktický, ale aj veľmi moderný. Pri zariaďovaní izieb bol použitý kontrast nábytku v svetlých pastelových farbách a tmavého dreva. Hlavnými prvkami fasády sú sklo a drevo.
Moderne zariadená jedáleň s panoramatickým oknom

Kuchyňa s nábytkom z tmavého dreva

Elegantná obývacia izba s ázijskými dekoratívnymi prvkami

Spálňa s drevenou podlahou a šatníkom

Štýlová spálňa s krbom

Kúpeľňa s moderným dizajnom

Priestranná drevená terasa s panoramatickým výhľadom

Terasa s drevenou podlahou a skleneným zábradlím

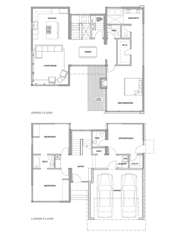
Architektonický plán prvého a druhého poschodia

