Moderný matný rodinný dom – konštrukcia vo svahu v Japonsku

A moderný rodinný dom bola založená v roku 2012 mattch Architekti postavili. Nachádza sa v kopcovitom teréne, obklopený nízkymi budovami. Architekti zvolili otvorený pôdorys a efektívne plánovanie miestnosti spojením všetkých miestností dohromady.
Moderný rodinný dom v Japonsku

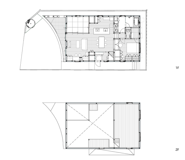
Aj keď je plán miestnosti na prízemí jednoduchý a funkčný, stavebný pozemok je v súlade s architektúrou. Terén sa mierne svažuje dozadu, takže jedálenský kút je na nižšej úrovni. Okrem toho je potrebné nainštalovať okná, ktoré sa otvárajú do jedálne a spálne.
Moderný rodinný dom s drevenou fasádou

Aby sa v blízkosti severnej strany dostal strešný svetlík v tvare štrbinky, bol navrhnutý mierne zakrivený strop tak, aby bolo svetlo možné distribuovať do každého rohu miestnosti, ostatné svetlá sú koordinované s líniou stropu, čo vytvára pocit mäkký vzduch vytvárať.
Pohľad z ulice

Keďže majiteľ pracuje pre spoločnosť obchodujúcu s farbami, návštevníci by mali dom vnímať ako predvádzaciu miestnosť pre farby. Vodotesná farba bola použitá vo vnútri aj mimo budovy.
Jedáleň a kuchyňa
biela kuchyňa

Drevené podlahy

Posuvné rozdeľovače miestností

Pracovný priestor

Svetlík

plánovanie otvoreného priestoru

biely interiér


Kúpeľňový dizajn


Fotografie © nacasa&partneri
Stará čistiareň prerobená na moderný rodinný dom
