Moderný dom v Mexiku s neobvyklou architektúrou

Casa Diaz je a moderný dom – Oprava – je to úplne ohromujúci mexický dom s neobvyklou architektúrou. Všetci vieme, ako sa môžu nápady mexickej architektúry, interiéru a exteriéru líšiť od ostatných na svete. Exotické línie a rustikálny štýl tu jeden transformuje moderný dom v krásnom a skutočne zvláštnom dome. Pridajte k tomu skutočnosť, že moderný dom stavajú vedľa veľkého jazera. Vo veľkej miere sa používa pri tvorbe exteriéru.
Moderný dom v Mexiku od Štúdio Productora

Moderný dom Casa Diaz je projekt mexického štúdia Productora. Tím dizajnérov a architektov Felix Guillen, Diego Escamilla, Oscar Trejo a Ivan Villegas spoločne pracujú na vytvorení tohto veľkého domu v mene rodiny Diazových. Napriek tomu, že dom navrhli skutočne dobrí profesionáli, dom bol pôvodne myšlienkou jeho obyvateľov.
Casa diaz – moderný dom s terasami rôznych výšok

Dokončené v roku 2011, očarené tento moderný dom so svojou fasádou a konštrukciou stále na prvý pohľad. Oba sú prepojené v krásnej harmónii a atmosféra je mimo domu rovnako útulná ako vo vnútri. Fantastické, luxusné a krásne. Na fasádu projektanti používajú ekologické materiály ako kameň, drevo a kvalitnú omietku.
Casa Diaz je moderný domov v Mexiku

Casa Diaz je a moderný dom s neobvyklou architektúrou vo Valle de Bravo, Štát Mexiko, Mexiko. Okolie a nádherná krajina zohrávajú veľkú úlohu v hrejivej a retro atmosfére. Sklenený povrch konštrukcie a modernistické zväzky sa spájajú do dynamickej konfigurácie, ktorá je hodnotená ako dokonalý príklad moderný dom v Mexiku.
Casa Diaz od Štúdio Productora
Abigail
Moderná mexická architektúra Casa Diaz

nádherné vnútorné nádvorie

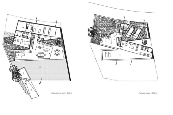
moderný dom s neobvyklou architektúrou z vtáčej perspektívy

V noci magické osvetlenie Casa Diaz

Mexický dom s podlahami z prírodného kameňa





