Moderný dizajn fasády v čiernej farbe – dom vo svahu

Žiadna iná farba nie je taká magická ako čierna. V našej kultúre sa považuje za ambivalentný a nejednoznačný. Čierna a biela sú súčasťou ducha modernej architektúry a dizajnu všeobecne. Vďaka technickému pokroku boli navyše objavené nové typy UV stabilných pigmentov a spojív, vďaka ktorým sú farby menej citlivé na tepelné napätie. A aj keď je čierna označovaná ako nefarebná, stáva sa viac akcentovou farbou. Jeden moderný fasádny dizajn v čiernej farbe nepochybne spôsobuje rozruch.
Moderný dizajn fasády v čiernej farbe – fasáda domu s rozdielom

Moderný dizajn fasády v čiernej farbe v žiadnom prípade nevychádza z okolia. Naproti tomu sa od toho dištancuje. Táto čierna budova vyzerá ako uviaznutí mimozemšťania a nachádza sa v Čile. Viacpodlažný dom s efektnou, ale veľmi jednoduchou a tradične fasádou domu obloženou drevom je projektom spoločnosti Anf Architects.
Moderný dizajn fasády v čiernej farbe – moderný dom vo svahu

Dizajn domu zvonku aj zvnútra sa vyznačuje jasnými, jednoduchými tvarmi a drevom ako tradičným stavebným materiálom. Dom je vo svahu a má priestrannú terasu, ktorá prechádza po celej dĺžke budovy. Odtiaľto máte nádherný výhľad na okolitú prírodnú krajinu.
Moderný dizajn fasády – vonkajší obklad z dreva a prevedený v čiernej farbe

Vnútri je útulná atmosféra sprostredkovaná zariadením v tradičnom štýle vidieckeho domu.
Moderný fasádny dizajn s jednoduchým, jasným dizajnovým jazykom v čiernej farbe

Viacpodlažný dom vo svahu

Moderný fasádny dizajn v čiernej farbe – budova pozostávajúca z niekoľkých odsadených prvkov

Architektonický dom na svahu

Dve priestranné predĺžené terasy na každej strane domu

Terasa s krásnym výhľadom na nehnuteľnosť a okolitú prírodu

Útulný obývací priestor s francúzskymi dverami od podlahy po strop

Útulný interiérový dizajn v modernom štýle vidieckeho domu

Moderná kuchyňa s jedálenským stolom pre osem osôb

Obývacia izba s kuchyňou v modernom vidieckom štýle

Dekoratívne prvky tradičného umenia – prútené výrobky, nábytok a obrázky

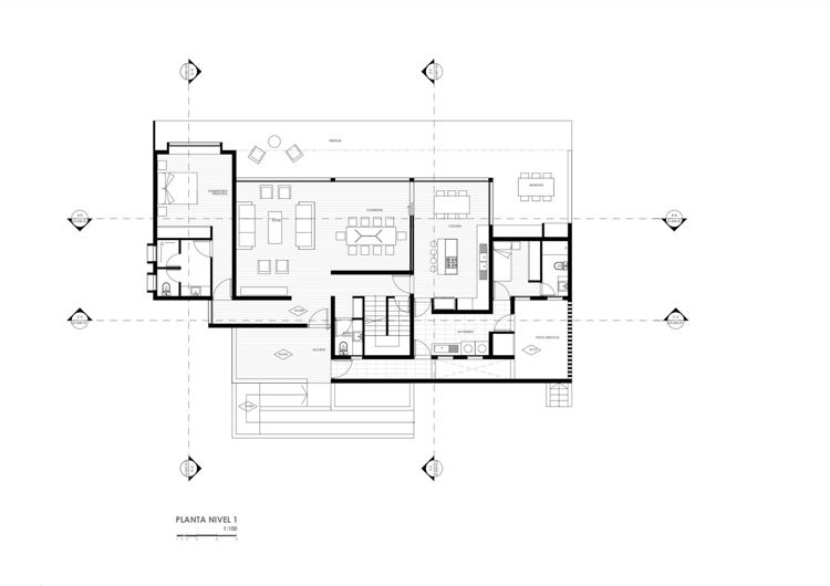
Pôdorys a pôdorys prvého poschodia

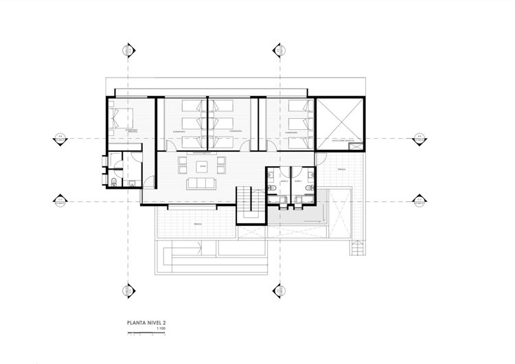
Pôdorys a pôdorys druhého poschodia

Moderný dom na svahu – bočný pohľad

Moderný dom na svahu – bočný pohľad

* projekt od Začínajúci architekti
