Dom s babičkou – moderná nadstavba zaisťuje väčšiu voľnosť pohybu

Takzvaná prístavba domu „Tetris“ na severozápadnom Melbourne je kompaktnou nadstavbou domu so samostatným bytom. Projekt bol dokončený začiatkom roku 2018. Zákazníci, mladý pár s dvoma malými deťmi, vystúpili zo svojho úhľadného kalifornského bungalovu a potrebovali viac priestoru na pohyb. Z tohto dôvodu najali architektonickú firmu Crosshatch, ktorá mala vytvoriť priateľské a efektívne rozšírenie. Toto spĺňa potreby rodiny, pričom zachovaný je obľúbený charakter pôvodného domu s oddeleným bytom a dvoma spálňami. Architekti tiež prepracovali existujúci pôdorys tak, aby poskytoval tretiu spálňu, ďalšiu kúpeľňu a centrálny salónik.
Praktický a moderný – dom so samostatným bytom

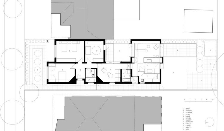
Jednoduchosť výslednej prístavby domu ukazuje predovšetkým vysoký stupeň zložitosti a multifunkčnosti. Architekti týmto spôsobom zohľadňujú všetky aspekty lokality a jej okolia. Presvedčivá kombinácia pozostáva predovšetkým z efektívneho využitia 45 metrov štvorcových dodatočného priestoru na pohodlné umiestnenie novej kuchyne, jedálne a práčovne.

Prioritou domu so samostatným bytom bolo tiež zachytenie polárnej žiary, čo realizovali stavební robotníci v južnej časti prístavby. Okrem toho tím dosiahol požadované výsledky zavedením centrálneho nádvoria a strategicky umiestneného okna.
Prineste zvonku dovnútra

Prístavba domu sa zdá byť taká väčšia, ako v skutočnosti je, a to nielen kvôli minimalistickému usporiadaniu interiéru, dokonca aj prenikaniu svetla a silnému vzťahu s vonkajšou oblasťou. Pre klientov a spoluzakladateľov Crosshatch, Jaime Diaz-Berrio a Marka Allana, bolo najdôležitejšie priniesť exteriér do domu. Z tohto dôvodu obaja architekti vybavili jedálenský kút hlbokými stropmi a dvojkrídlovými sklenenými dverami na vnútorné nádvorie cez veľké panoramatické okno..

Táto aktívna zelená plocha kombinuje staré a nové a rozširuje obytné priestory za ich hranice, čím vytvára pocit priestoru. Dizajn tiež umožňuje vizuálne prepojenie miestností. To znamená, že rodičia majú z kuchyne vždy jasný výhľad na deti bez ohľadu na to, či sa hrajú v ich spálni, obývačke, na nádvorí alebo v záhrade..
Prímestský dom so samostatným bytom

Dizajnéri usporiadali tvary novej prístavby domu v konfigurácii podobnej Tetrisu. To je vyjadrené v pôdoryse, nadmorskej výške a reze. Spojovacie oblasti spájajú formu a funkciu starého a nového. Koncept Tetris pokračuje cez detaily vo vnútri domu, akými sú skrinky na mieru a kľučky kuchynských dvierok na mieru.
Dávajte pozor na kontext

Exteriéru dominuje nápadné 4,5 metra vysoké okno, ktoré rámuje veľký gumový strom na zadnom pozemku. Prístavba a existujúci dom s bytom babičky teda citlivo patria do prímestského kontextu. Architekti použili recyklované červené tehly, aby rešpektovali pôvodný sortiment materiálov domu. Každé rozhodnutie v dizajne, od najmenších interiérových detailov po celkový tvar exteriéru, bolo starostlivo zvážené. Výsledkom je presvedčivý prístup k modernému bývaniu s malými priestorovými požiadavkami.






