Bezbariérový dizajn domu od Studio Octopi v Anglicku

Táto nehnuteľnosť s bezbariérovým prístupom Dizajn domu sa nachádza v juhozápadnej časti Anglicka a bol navrhnutý architektonickým štúdiom Štúdio Octopi navrhnuté. Dom bol postavený čo naj diskrétnejšie a je len ťažko rozpoznateľné, že je dom vhodný pre invalidný vozík.
Návrh domu s nenápadnými úpravami invalidného vozíka

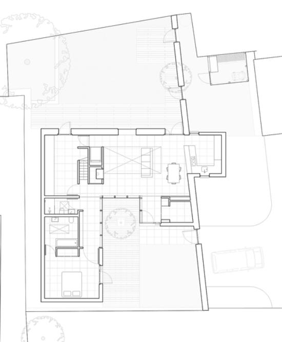
Dom sa volal Orchard House a stojí na mieste bývalej záhrady vo Wiltshire. Architektonický ateliér sa postaral o to, aby bol v budove starý kamenný múr s historickým významom Dizajn domu je integrovaný. Architekti navrhli dom na dvoch podlažiach. Aby bolo vhodné pre invalidné vozíky, do druhého poschodia sa dostanete nielen po schodoch, ale aj výťahom.
Návrh domu – plánovanie interiéru a zariadenie

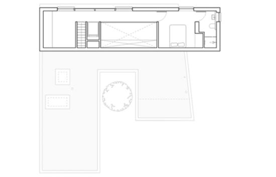
Obývacia izba je na prízemí, ale je dvakrát vyššia ako ostatné miestnosti. Presklená stena oddeľuje obývaciu izbu od južného záhradného dvora. To Dizajn domu Cieľom je vytvoriť chránené slnko, kde si môžete užiť svoj súkromný priestor a cítiť sa bezpečne. Na prízemí sa nachádza aj hlavná spálňa a pracovňa. Na druhom poschodí je hosťovská izba a hobby miestnosť.
Kombinácia starovekej histórie a moderného dizajnu

To Dizajn domu nebol navrhnutý len ako obytný priestor, ale aj ako pracovisko. Podľa špecifických požiadaviek zákazníkov by mali byť bezbariérové prvky sotva viditeľné. Budova bola navrhnutá tak, aby bola čo najudržateľnejšia a najšetrnejšia k životnému prostrediu, a bola prispôsobená konkrétnym charakteristikám krajiny. Hlavnou myšlienkou bolo zachovať atmosféru a charakter regiónu, ako aj jeho bohatú históriu, a aby to bolo zreteľne viditeľné v architektúre domu..
Fantastické zelené prírodné prostredie

Moderné drevené obloženie kombinované so stenou zo starého kameňa

Jednoduchý dizajn z dreva a skla

Malý strom rastie z podlahy drevenej paluby

Sklenené posuvné dvere vedú do záhrady

Systém nástenných políc v bielej farbe

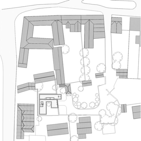
Pôdorys oblasti

Architektonický plán prízemia

Architektonický plán z horného poschodia

Prierez domu

