Atraktívny dom v lese s pôvodnou architektúrou od Davida Jamesona

Predstavujeme vám jednu výnimočnú Dom v lese, ktorý svojou nepravidelnou architektúrou priťahuje pozornosť každého. Americký architekt David Jameson nazval impozantnú stavbu NaCl. Áno, presne, kuchynská soľ s chemickým vzorcom NaCl, ktorá sa v prírode vyskytuje vo veľkých množstvách. Je to práve kryštálový systém kryštálov kamennej soli, ktorý inšpiroval architekta k jeho pozoruhodnému projektu.
Úžasný dom v lese sa nazýva „NaCl“ alebo „soľ“

Fasáda s kubickými fasádnymi prvkami nevyzerá perfektne, hrubo opracovaná a tvarom pripomína kryštály soli. Ten moderný Dom v lese fascinuje svojim mimoriadnym kubickým architektonickým štýlom. Tradičná architektonická priamosť – vertikálna a horizontálna – čiastočne chýba. Inovatívny spôsob myslenia architekta je vidieť a cítiť v každom rohu domu.
Inovácie v architektúre – jedinečný domov v Marylandskom lese, USA

To Dom v lese, ktorá bola postavená v novembri 2011, sa nachádza na 450 metroch štvorcových v Bethesda, Maryland, Spojené štáty. Jeho jedinečný exteriér nepôsobí ako objekt, ale ako dynamické, tekuté zloženie niekoľkých konzolových modulov. Tento dojem pokračuje založením. Lesklé stenové panely eliminujú tieň na zvislých plochách fasády.
Jednoduchý interiér – zaplavený prirodzeným svetlom

To Dom v lese sa vyznačuje veľkou individualitou. Posuvné dvere a okná od podlahy až k stropu vo vnútri podčiarkujú jas a otvorenosť jasného dizajnu. Obe poschodia sú svetlé a zaliate svetlom. V strede domu je obývacia izba s nádherným nábytkom a najmodernejším vybavením. Drevené schodiskové schodisko so sklenenými zábradliami vedie z obývačky do súkromnej zóny na hornom poschodí. Obývacia izba s vysokým stropom je obzvlášť slnečná a presvetlená vďaka bezrámovým oknám od podlahy po strop. Izba je ergonomická a optimálne využitá.
Fotografie: Paul Warchol
Impozantný dom snov uprostred lesa z Architektúra Davida Jamesona

Nezvyčajná betónová fasáda

Moderný asymetrický dom uprostred lesa

Dom NaCl v Amerike

Betónový dom v lese

Moderná architektúra v lese

Betónový dom so zasklením od podlahy až k stropu

Impozantný dom v lese s terasou

Biele steny pôsobia elegantne

Jednoduchý dizajn interiéru

Moderné schodisko so skleneným zábradlím

Svetlé interiéry v dome NaCl

Okná od podlahy až k stropu pre vyšší jas

NaCl dom Davida Jamesona

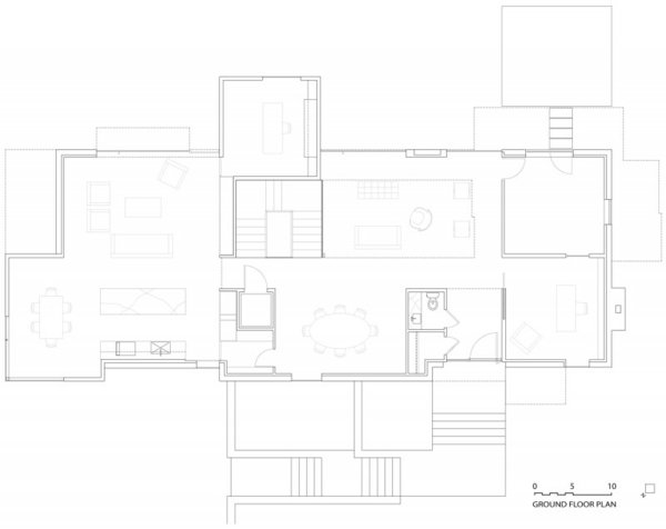
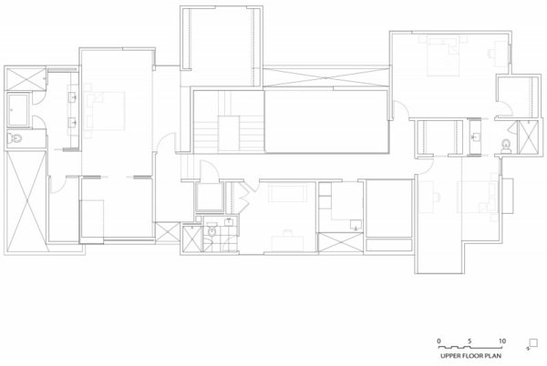
Pôdorysy

