minimalistická architektúra domu od Bruna Vanbesien Architect
Michèle & Johan Dom v Belgicku

Títo minimalistická architektúra domu sa nachádza v meste Vossem v Belgicku a projekt navrhol Bruno Vanbesien Architect. Je to nádherný domov, ktorý okamžite upúta svojimi čistými a elegantnými líniami. Projekt bude postavený prevažne z prírodných materiálov, pretože to je jedna z priorít Bruna Vanbesiena. Ďalšou charakteristikou práce talentovaného architekta je pozornosť každému detailu a potvrdenie týchto slov nájdete na nižšie uvedených fotografiách. V skutočnosti to môže byť minimalistická architektúra domu ponúkajú veľmi atraktívny interiér.
minimalistická architektúra – svetelná jedáleň

Každý minimalistická architektúra domu sa snaží dodržiavať ideálnu ergonómiu, pričom využíva maximum každej častice priestoru. Michèle & Johan Dom nie je výnimkou. Všetky interiérové prvky sú navzájom neuveriteľne prepojené a predstavujú obývací priestor s čistými líniami, ktorý návštevníkovi okamžite padne do oka. Vďaka veľkej presklenej streche sú obytné priestory presvetlené slnečným žiarením, ktoré v tomto zvyšuje atmosféru minimalistický dom robí ťa sviežim a živým.
minimalistická architektúra s dreveným obložením

Zaujímavý dizajn krbu


Štruktúra tohto minimalistická architektúra domu má čisté a hladké povrchy, natreté na bielo. Keď sa pozriete na tie snehobiele steny a stropy, zostanete uchvátení tou brilantnou čistotou a pôvabom. Drevený nábytok zároveň dopĺňa túto príjemnú atmosféru pridaním romantického nádychu. V skutočnosti sú na to špeciálne vyrobené všetky kusy nábytku minimalistická architektúra domu navrhnuté.
minimalistický interiérový dizajn – biele schody

Jedným z najdôležitejších pravidiel pri navrhovaní interiéru minimalistické domy je zahrnutie najmenej jedného živého prvku do dispozície miestnosti. Tento trik pomáha integrácii priestorových prvkov. V rámci projektu je tento efekt dosiahnutý použitím tmavého nábytku, ale plátovaného zebranovým drevom, čo je situácia v tomto minimalistický dom robí to naozaj štýlovým.
Okno od podlahy k stropu v minimalistickom dome

biela lesklá doska v kuchyni

Interiér kúpeľne v bielej farbe

Dizajn domácej kancelárie v minimalistickom štýle

minimalistická terasa s bielymi dlaždicami

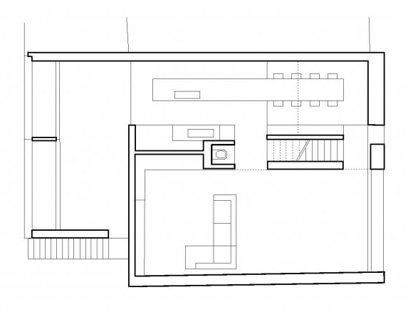
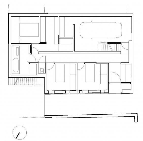
Architektonické plány minimalistického domu z Bruno Vanbesien architekt


