Mezonetový galerijný byt – Štýlový a svetlý byt so šikmou strechou a dizajnovým nábytkom

Tento chladný a moderný mezonetový galerijný byt z litovského Vilniusu bol dokončený v roku 2018. Projekt sa jednoducho nazýva Byt B9 a myšlienka pochádza od architektov EMA Butrimaviciute. Apartmán s rozlohou 100 metrov štvorcových sa nachádza v modernej obytnej budove, ktorá susedí so starým mestom Vilnius a útulným parkom.
Minimalistický mezonetový byt

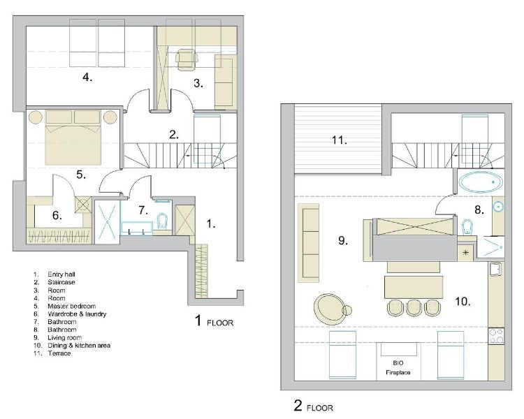
Byt B9 je rozdelený predovšetkým na dve funkčné zóny. Z tohto dôvodu dizajnéri urobili z prízemia pokojnú oblasť na prácu a spánok. Tri súkromné izby a kúpeľňa sú tiež prepojené s priestrannou predsieňou, v ktorej sú hlavným prvkom schody.

Závesné oceľové konštrukcie pomáhajú schodisko vizuálne odľahčiť, zatiaľ čo sklenené prvky vytvárajú hravé odrazy medzi umelým a prirodzeným osvetlením. Horné poschodie je venované obývacej izbe a kuchyni s jedálenským kútom.

Plánovanie otvoreného priestoru mezonetového galerijného bytu umožňuje optimálne využitie prirodzeného svetla východnej a západnej fasády. Z tohto dôvodu je tu jedinou uzavretou oblasťou druhá kúpeľňa. Toto má tiež vizuálne prepojenie so schodiskom cez inteligentné sklo.
Moderný interiérový dizajn

Inšpirovaní umeleckými galériami vytvorili dizajnéri domov, ktorý je zaliaty svetlom. Biele povrchy pokryjú takmer každú podlahu, stenu a strop. Nainštaluje sa súčasný nábytok a svietidlá, ktoré dodajú inak bielej farbe iný vzhľad.

Podľa projektantov bola lakonická architektúra obytnej budovy inšpiráciou pre redizajn interiéru mezonetového galerijného bytu. Textúra bola tiež kľúčovým slovom pre výber materiálov. Teplé a svetlé farby a poltóny zvýraznia každý predmet v interiéri a urobia vyhlásenie.

V súlade s tým sú jedinými vstavanými prvkami v byte kuchyňa a krb. Priemyselné fasády z kartáčovanej ocele kontrastujú s výraznými kúskami mramoru. Zvyšok miestnosti zostáva čistý a uprataný – perfektné prostredie na predvádzanie umenia, ktoré obyvatelia za tie roky zozbierali..

Ako bolo uvedené vyššie, prvé poschodie mezonetového galerijného bytu slúži predovšetkým na relaxáciu a spanie. K dispozícii sú tri miestnosti, z ktorých dve sa zdajú byť spálňami, zatiaľ čo tretia je útulným kútikom vhodným predovšetkým na štúdium alebo čítanie. Ostatné miestnosti sú vyhradené pre sklad alebo kúpeľňu na prízemí.

Ak teda vystúpite o jednu úroveň vyššie, prejdete do hlavnej obývačky. Podľa toho je to otvorená miestnosť s kuchyňou, jedálenským kútom a obývacou izbou v jednom. K dispozícii je tiež veľká terasa a druhá kúpeľňa.




