Kadernícky salón v Pekingu fascinuje nábytkom plným svetla a sofistikovanosti

Kadernícky salón „MQ Studio“ sa nachádza v „China World Trade Center“, v centre pekinskej obchodnej štvrte, a je obklopený mnohými obchodmi s módou. Zariadenie preto muselo zapadnúť na toto jedinečné miesto a spojiť sa s pulzujúcim životom metropoly. Projekt bol navrhnutý a dokončený spoločnosťou CAA na konci augusta 2018. Dizajn nie je obyčajným kaderníkom, ale umeleckou sochou, ktorá je vystavená v centre China World Trade Center.

Trblietavý strop vo vnútri miestnosti odkazuje na zlatú rieku, ktorá sa vo večernom svetle pomaly vlieva do diaľky. Socha zlatého stropu stúpa z plávajúcich oblakov svetla a ponúka návštevníkom pôsobivý vizuálny zážitok. To vytvára pocit nekonečných možností, ktorý je bežný na rozsiahlych plochách oblohy.

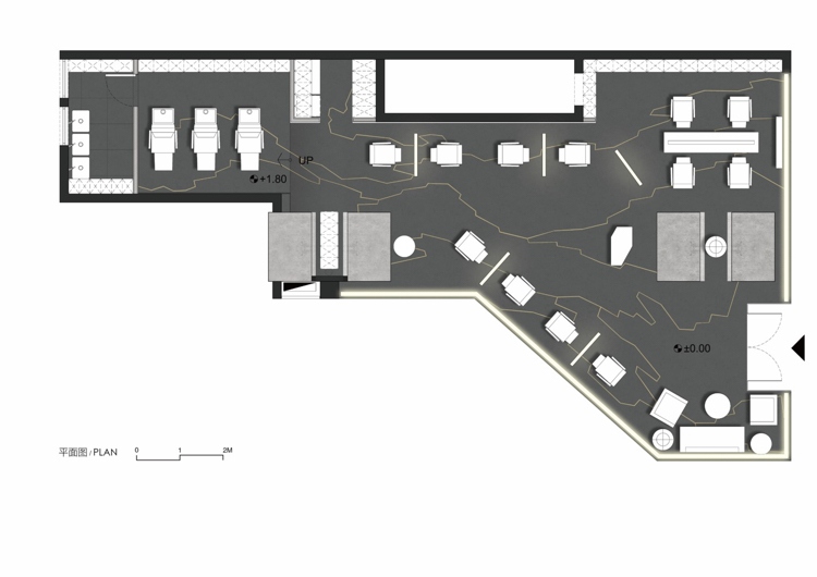
Make-up zrkadlá rastú ako stalaktity z vysokého stropu na rôznych miestach v miestnosti. Kombinácia estetiky a funkcie je navrhnutá tak, aby bola obzvlášť bezproblémová. Plán salónu je nepravidelného tvaru a má štyri veľké šikmé podperné stĺpiky.

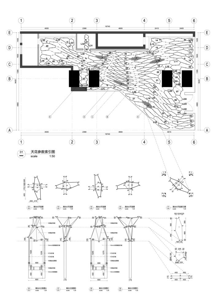
Unikátna štruktúra a malý priestor predstavovali pre návrhársky tím rôzne výzvy v oblasti dizajnu. Namiesto skrytia priemyselných zariadení za stropnými panelmi sa architekti rozhodli zvýrazniť stropnú časť pomocou generatívneho algoritmu návrhu na vytvorenie ohromujúceho parametrického tvaru, vzoru jednej vlny. simulované.

Koncepčne by mal strop vyzerať ako povrch vody šumivej pod slnkom. Na výrobu stropu bola použitá vysoko reflexná nehrdzavejúca oceľ zlatej farby. Po preskúmaní reflexných vlastností materiálu tím CAA presne zarovnal každý povrch tak, aby lámal svetlo v rôznych uhloch.

Montáž stropu bola pre stavebný tím veľkou výzvou. Ručne vyrobených a nainštalovaných bolo viac ako 300 rôznych šesťuholníkov. Konvenčný proces spájkovania nebol možný kvôli citlivým vlastnostiam materiálu. Návrhu a konštrukčnému tímu trvalo niekoľko mesiacov, kým prišli s najlepším riešením a umožnili konečnú inštaláciu interiérových umeleckých diel.




















Architekti: CAA
Miesto: World Trade Center III, Peking, Čína
Rozloha: 150,0 m²
Rok projektu: 2018
Fotografie: Zhuoying Ren, Felix Amiss
