Vápencové dlaždice a tmavé drevo v plážovom dome v Austrálii

Williamstown Beach je súkromný dom v Williamstowne v Austrálii, ktorý navrhol Steve Domoney Architecture. Nachádza sa priamo na odľahlej pláži a ponúka nádherný výhľad na oceán. Z tohto dôvodu sa architektúra pokúša vytvoriť čo najsilnejšie spojenie zvnútra a zvonku. Vápencové dlaždice vo vnútri pripomínajú plážový piesok, zatiaľ čo tmavé drevené panely poskytujú príjemný kontrast svetlo-tma.
Vápencové obklady do exteriéru

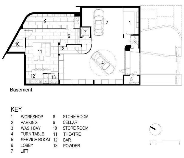
Pre architektov bolo skutočnou výzvou naplánovať všetky obytné priestory tak, aby mohli optimálne využiť krásne výhľady bez ohľadu na to, či sú v prednej alebo zadnej časti domu. Vonkajší priestor by mal byť tiež dobre chránený pred prevládajúcim vetrom a morským vánkom, aby ste si tam mohli pohodlne posedieť bez ohľadu na meniace sa poveternostné podmienky v Melbourne.
Vápencové dlaždice na steny a podlahy

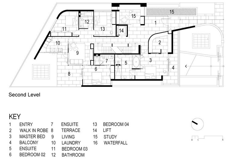
Z každej obývačky na prízemí, či už je to kuchyňa, jedálenský kút alebo obývacia izba, máte výhľad na pláž prostredníctvom zasklenia od podlahy až k stropu a chránenú vonkajšiu terasu. Pôdorys je otvorený a vyzerá veľmi uvoľnene. Strecha sa nad ňou vznáša, ako keby bola oddelená od múrov pod ňou.
Fasádny obklad s plechovými platňami

Vápenec sa v domácnosti hojne používal a je odkazom na pieskové farby. Naproti tomu existujú tmavé drevené panely, ktoré vyžarujú špeciálne teplo. Vápencové dosky a fasádne plášte z tmavých, zvetraných zinkových platní ponúkajú odolnosť voči drsnému pobrežnému podnebiu.
Kontrast medzi drevom a prírodným kameňom

Vchod a veranda

plávajúce schody do horného poschodia

veľká funkčná kuchyňa s ostrovčekom

pracovná doska z tmavého dreva a tmavého kameňa

čierny nábytok do jedálne

Pohľad na pláž z obývačky

masívne otočné dvere do spálne

Dizajn steny, podstavec postele a posuvné dvere v rovnakom tóne dreva

voľne stojaca vaňa v spálni








Projekt od Architektúra Steva Domoneyho
