Tradícia sa stretáva s modernou – plážový dom na tichomorskom pobreží Mexika

Dom snov na tichomorskom pobreží Mexika navrhli architekti Bernardi + Peschard a dokončili ho v roku 2013. Dom pozostáva z niekoľkých štruktúr, ktoré nie sú navzájom prepojené, ale sú určené ako samostatné penzióny. Tradícia sa stretáva s modernou v tomto projekte vo všetkých smeroch.
Tradícia sa stretáva s modernou – vysnívaný plážový dom na tichomorskom pobreží Mexika

Z hľadiska architektúry sú hranaté vonkajšie steny a tradičná konštrukcia kombinované so slamenou strechou a drevenou konštrukciou. V interiéri ladia prírodné materiály, niekedy drsné s moderným zariadením a harmonickým nepriamym osvetlením. Záhradné pôžitky s exotickými, rozmanitými druhmi rastlín a záhradným chodníkom z pravých plátkov stromov, ktoré sú vhodne zasadené do scény s harmonickým vonkajším osvetlením.
Tradícia sa stretáva s modernosťou v architektúre a dizajne plážového domu

V každej miestnosti a oblasti sa tradícia a moderna harmonicky a obzvlášť útulne spájajú a sú ohraničené určitým luxusom. Interiér je navrhnutý tak, aby bol štýlový a pohodlný s veľkým dôrazom na detaily. Neoddeliteľnou súčasťou interiéru je typický prvok – rákosový strop a drevené obloženie.
Tradícia sa stretáva s modernou – tradičné stavebné materiály a moderné prvky

Tradícia sa stretáva s modernou – exotické rastliny v záhrade sú atraktívne osvetlené

Tradícia sa stretáva s modernou – vchod do domu pod rastlinami, na konci záhradnej cesty

Tradícia sa stretáva s modernosťou – moderná slamená strecha

Tradícia sa stretáva s modernou – otvorená spoločenská miestnosť so zelenými rastlinami, drevenými trámami a slamenou strechou

Tradícia sa stretáva s modernou – spoločenská miestnosť s posedením a jedálenským kútom pre každého

Tradícia sa stretáva s modernou – prírodné materiály sú elegantne spracované

Charakteristika typická pre tradičnú stavebnú metódu v Mexiku – prírodný kameň, drevo, slamená strecha, zelené rastliny

Spoločenská miestnosť otvorená vonku s krásnym výhľadom na Pacifik

Pohodlná obývacia izba s moderným nábytkom

Malý jedálenský kút bokom

Elegantná obývacia izba so vstupom do záhrady

Hlavná spálňa s priamym vstupom do záhrady

Dvojposteľová izbar s dvoma samostatnými lôžkami

Rodinný apartmán – k dispozícii je manželská posteľ a jednolôžka

Elegantná kúpeľňa – obloženie stien a stropov z dreva

Priestranná kúpeľňa s dažďovou sprchou

Návrh kúpeľne s použitím prírodných materiálov – prírodného kameňa a dreva

Schodisko v modernom, minimalistickom štýle – oceľ, prírodný kameň a cement

Drevené obklady a trstinový strop v každej oblasti vyrobené z vysoko kvalitných materiálov sú moderné

Dom snov zložený z niekoľkých štruktúr na tichomorskom pobreží Mexika

Plážový dom, v ktorom sa spája tradícia a moderna

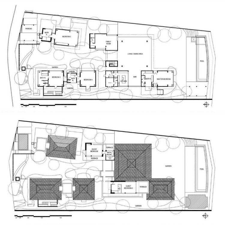
Plážový dom z niekoľkých štruktúr – plán a distribúcia

Fantastický dom na tichomorskom pobreží Mexika

* projekt od Bernardi + Peschard
