Strešná krytina z Cortenu s unikátnym vzorom v rezidencii v Indii

V dnešnom článku by sme vám predstavili The Portal House, ktorý navrhol Reasoning Instincts Architecture Studio v roku 2017. Rezidencia s atraktívnym krížovým tvarom má celkovú plochu 665 m² a nachádza sa v meste Umargam v Indii. Portálový dom je navrhnutý so základnou myšlienkou prepojenia súkromných a otvorených priestorov tak, aby bolo súčasne zaručené súkromie a socializácia. Rozsiahla rezidencia fascinuje oceľovou krytinou Corten so zaujímavými filigránskymi vzormi, ktoré šikovne stavia do centra pozornosti vybrané stavebné prvky..

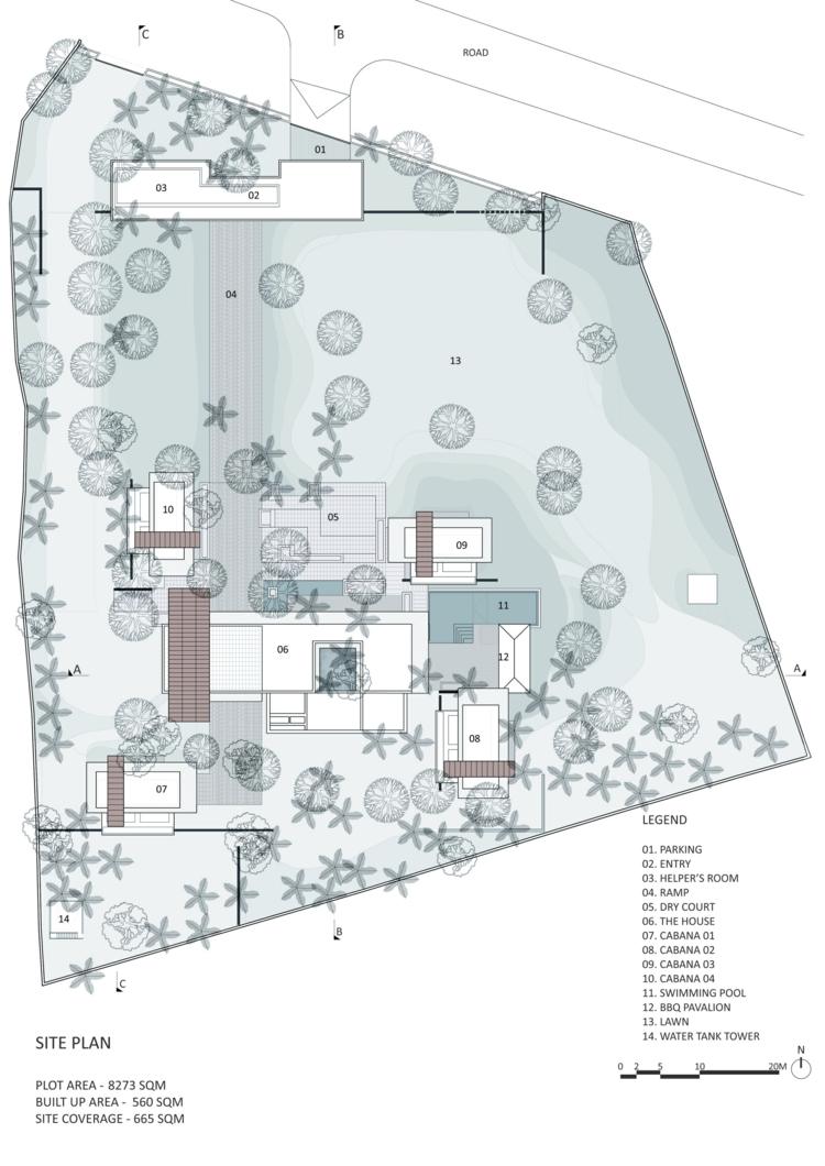
Stred domu je srdcom budovy. S ním sú spojené štyri trámy, ktoré sú zarovnané so spálňami alebo takzvanými „kabanami“. Svetlé prechodové miestnosti sú navrhnuté tak, aby sa spojila hranica medzi vnútornými a vonkajšími priestormi. Celý komplex zahŕňa obývací a jedálenský kút, kuchyňu a štúdiá Cabana. Okrem toho je dom vybavený veľkou zeleňou a vnútorným dvorom a má športovú miestnosť, bazén, vonkajšiu vírivku a pavilón na grilovanie..

Vstupný priestor rezidencie so šesť metrov širokou pešou rampou umožňuje obmedzený prístup pre vozidlá. Táto rampa a spomalená príjazdová cesta vytvárajú akúsi prechodovú zónu medzi mestským, dynamickým životom a pokojom a odlúčením v portálovom dome. Strategicky zarovnané betónové steny v rámci rezidencie, ako aj umiestnenie stromov určujú a vedú trasy pre peších a vodičov.

Dom a kabíny slúžia ako hlavné komponenty a dodávajú skvelé dizajnové akcenty. Každý z týchto konštrukčných prvkov je vybavený pôsobivou strechou z ocele Corten, takže rozdelená oblasť je umne usporiadaná ako celok. Cortenská oceľová strecha obklopuje dom a kabany a týmto spôsobom označuje polohu komponentov v celkovom pláne v tvare kríža. Vysoké koruny stromov, ktoré vytvárajú jedinečnú, hravú svetelnú filtráciu, boli inšpiráciou pre moderný dizajn jednotlivých oceľových plechov Corten. To vytvára veľký kontrast medzi tvrdými a chladnými kovovými povrchmi a nádhernými a organickými korunami stromov.

V snahe premeniť obytnú časť na súvislú miestnosť nebol zriadený žiadny ďalší vchod. 16 metrov dlhá severná fasáda zo skla umožňuje plynulú a neobmedzenú súhru vnútorných a vonkajších priestorov. Sklenená predná časť a otvorený koncept zaisťujú transparentnosť a svetlo zaplavené miestnosti.

„Kabany“ sú navrhnuté ako štúdiové spálne s otvoreným pôdorysom, ktoré ponúkajú priestor na bývanie a spanie. Netradičná výška stropu miestnosti umožňuje trvalú súhru s korunami stromov. Rezidencia sa vyznačuje priestrannosťou izieb a vedomým výberom vysoko kvalitných materiálov, ktoré umožňujú otvorený a slobodný životný štýl.

















* Viac projektov z Reasoning Instincts Architecture Studio nájdete tu
