Stavajte energeticky efektívne – koncepčný dom pre relaxáciu v prírode

S programom financovania KfW “Budujte energeticky efektívne„Získate podporu pri stavbe alebo kúpe nízkoenergetického domu. Do úvahy sa berú rôzne komponenty, ako napríklad využívanie obnoviteľných energií, emisie CO2, tepelná izolácia atď. To bude v budúcnosti obzvlášť cenné. Dnes vám ukazujeme koncepčný dom v českom meste Lodin, ktorý je dokonalým príkladom ekologického domu. Projekt architektonickej firmy ASGK Design dostal názov Zilvar a získal čestné uznanie na Veľkej cene Architexture v roku 2014 v kategórii rodinný dom. Nachádza sa v blízkosti malej, tichej dedinky, obklopenej poliami, lúkami a lesmi. Ideálne miesto na oddych a relaxáciu v prírode. Prázdninový dom pozostáva z otvorenej obývačky s dvoma galériami, ktoré sú prepojené so záhradou. Vďaka neobvyklému tvaru domu si môžete vychutnať výhľad na starý dub a rybník na západe. Východná terasa sa otvára do záhrady.
Energeticky úsporná budova – príklad z Českej republiky

Jednoduchá budova s variáciami šikmej strechy je v súlade s okolitou prírodou. Štvorcové okná na fasáde je možné úplne otvoriť alebo skryť za nepriehľadné drevené okenice.
Obývacia izba a kuchyňa na prízemí tvoria otvorený obývací priestor. Vyvýšená plošina v južnej časti domu slúži ako čitateľský kútik s knižnicou a ponúka nádherný výhľad do záhrady. Otvorené spálne sú tiež v dvoch malých galériách vyššie. Z prízemia je prístup na krytú terasu. Podlaha terasy je udržiavaná v rovnakom tóne dreva ako v interiéri, čo posilňuje vizuálne prepojenie exteriéru a interiéru. Pevné bezrámové zasklenie prepúšťa do interiéru dostatok svetla.
Stavajte energeticky efektívne – dobrá izolácia je obzvlášť dôležitá

Hlavná konštrukcia je vyrobená z masívnych drevených profilov KVH. Nosné vonkajšie steny sú zvnútra pokryté doskami OSB s hrúbkou 18 mm a zvonka – drevovláknitými doskami. Vnútorné steny zo stĺpov KVH sú tiež obojstranne pokryté doskami OSB. Nenosné priečky sú vyrobené z dvojitého sadrokartónového systému s hrúbkou 100 mm. Sádrokartón odolný voči vlhkosti sa používa aj v miestnostiach s vysokou vlhkosťou.
Úložisko palivového dreva a poličky na knihy pod schodmi

Steny sú izolované 18 cm minerálnou vlnou zvnútra a 4 cm drevovláknitou doskou. Rovnakú izoláciu s hrúbkou 18 cm má aj strecha, na vonkajšej strane 8 cm drevovláknitá doska a na vnútornej strane 4 cm drevovláknitá doska. V prízemí je podlahová izolácia s celkovou hrúbkou 20 centimetrov.
Posedenie s výhľadom na prírodu

Okná sú navrhnuté z drevených profilov s trojsklom a výplňou inertným plynom. Okná sú bezrámové. Vnútorné steny a stropy sú prevažne obložené preglejkou a steny v kúpeľniach a toaletách sú obložené keramickými dlaždicami..
svetlé drevo na steny a stropy

Tento dovolenkový dom je navrhnutý podľa štandardov nízkoenergetických domov. Okrem izolácie a trojskiel sa na zníženie nákladov na energiu používajú aj ďalšie komponenty. Dom je vykurovaný hlavne infračervenými panelmi a prídavnými kachľami na drevo. Bivalentné zásobníky teplej vody a slnečné kolektory vyrábajú horúcu vodu. Sklenené posuvné dvere od podlahy k stropu optimálne využívajú v zime slnečné svetlo. V lete sú zatienené strechou terasy.
priehľadný sklenený kryt proti striekajúcej vode

Schody do spálne

malé pracovisko vedľa okna

čierne kovové zábradlie

tmavé podlahové dosky

Drevené panely na koľajniciach na ochranu súkromia

Pohľad do domu posuvnými dverami od podlahy k stropu

Vstup do domu

veľké štvorcové okno

Osvetlenie na terase

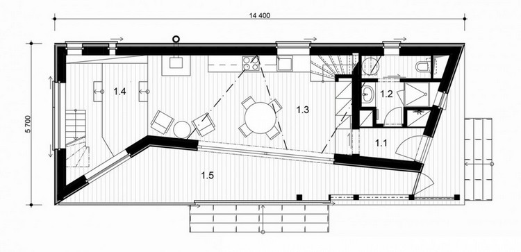
Architektonické plány







architektonická kancelária Dizajn ASGK
