Rupert Murdoch zaplatí 57 miliónov dolárov za štvorposchodový luxusný penthouse

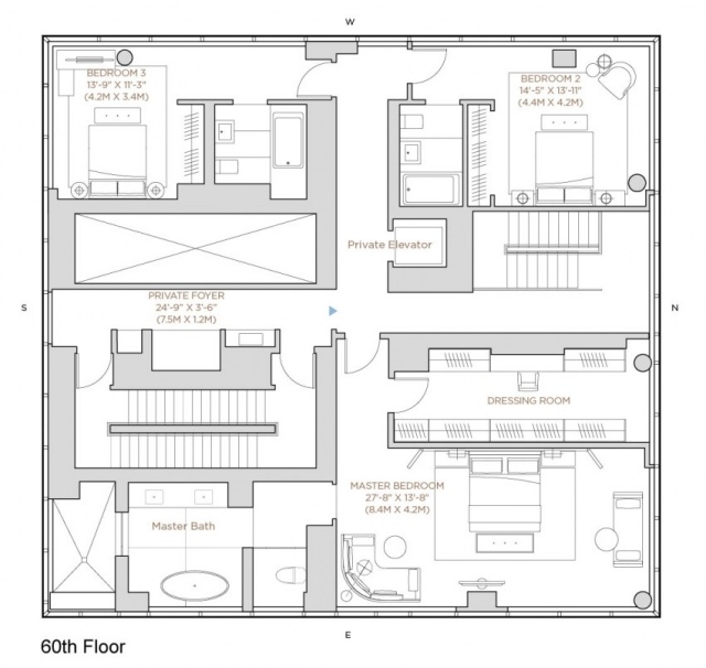
Mediálny magnát Rupert Murdoch kupuje Luxusný penthouse v newyorskej štvrti Manhattan za 57,3 milióna dolárov alebo ekvivalent zhruba 42 miliónov eur. Obrovský byt je v štyroch najvyšších poschodiach mrakodrapu v blízkosti parku Madison Square. Strešný byt sa rozprestiera na troch poschodiach medzi 58. a 60. poschodím, na obytnej ploche 750 metrov štvorcových. Celá nehnuteľnosť plus štvrté poschodie nižšie sa rozprestiera na viac ako 944 metroch štvorcových.
Nové Luxusný penthouse od Ruperta Murdocha

Napriek tomu, že jeho tretia manželka Wendi Deng si po minuloročnom rozvode ponechala spoločný byt na Piatej avenue, Rupert Murdoch si kúpil nový, super luxusný byt. Penthouse má okná od podlahy až k stropu a veľkú terasu, ktorá úplne prechádza okolo budovy. Pohľad na Manhattan je úchvatný, najmä v noci, keď je všetko magicky osvetlené. K luxusnému vybaveniu apartmánu patrí aj fitnes štúdio, sauna a krytý bazén s mramorovými stenami. S 20 izbami a fixnými nákladmi na mesačné upratovanie a bežné opravy okolo 21 500 dolárov je tento super apartmán považovaný za najdrahší v New Yorku..
Zriadenie Luxusný podkrovný byt

Penthouse byt Murdochs má tiež točité schodisko a široko otvorený obývací priestor. Nastavenie ešte nie je dokončené, čo mu dáva možnosť určiť konečný vzhľad svojej sklenenej veže. „One Madison Park“ je úchvatná sklenená veža na ulici 23. 23. Medzi Murdochovými susedmi sú Tom Brady a Gisele Bundchen.
3D vizualizácia jedálne

Sauna a wellness

Krytý bazén s mramorovými stenami

vlastná telocvičňa

sklenená veža na Manhattane

kinematografické pohľady





Fotografie prostredníctvom Jeden strešný apartmán Madison
