Moderný rodinný dom v Melbourne postavený z prírodných materiálov

„Nový starý“ je a moderný rodinný dom v Melbourne, Victoria, Austrália a bol z Jessica Liew navrhnuté v roku 2012. Bol navrhnutý jednoducho a priamočiaro ako kontrast k lesku a lesku dnešnej domácej dekorácie. Dom má rozlohu 385 m² a ponúka svetlé, ale súkromné obytné priestory s príjemnou atmosférou. Prírodné materiály vrátane betónu, tehál a tvrdého dreva, ktoré boli použité na jeho stavbu, prinášajú pocit poctivosti a surovosti, ktorý je v dnešnej dobe už len málokedy viditeľný.
Moderný rodinný dom postavený z prírodných materiálov

Cieľom architekta bolo vytvoriť príjemný súkromný dom, ktorý je energeticky úsporný, praktický a tvarovaný charakterom prírodných materiálov. Rozsiahla zbierka umeleckých diel a starožitností, ktoré vlastnia cestovatelia, je toho príjemným doplnkom. Výsledok je pozoruhodný. Novopostavený dom, kde býval susedov tenisový kurt.
Moderný rodinný dom s charakterom

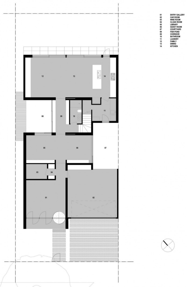
Dvojpodlažný dom má obývaciu izbu, jedáleň, knižnicu, suterén, domácu kanceláriu, samostatnú práčovňu, 3 spálne, 3 kúpeľne a garáž pre 3 autá. Z energetického hľadiska je dom pozoruhodný – okná a strešné okná s dvojitým zasklením, dvojité stropy, dvojité izolované steny, nádrž na vodu, ohrievače vody, recyklované tehly, hrubé vlnené koberce, trámy z tvrdého dreva. Izby je možné rýchlo prerobiť – domácu kanceláriu na izbu pre hostí (rozkladacia posteľ); hobby miestnosť v druhej domácej kancelárii; a štúdio alebo tretia spálňa na poschodí.

Sklenené otočné dvere na mieru nahrádzajú konvenčné predné dvere. Staroveké čínske dvere lemujú chodbu vedúcu k rybníku. Stena zdobí nástenná maľba známych melbournských pouličných umelcov Ghostpatrol a Miso. Všetky izby majú výhľad na vnútorné nádvorie a rybník. Dominantná paleta farieb obsahuje čierny betón, bielo natreté tehly a prírodné drevo, ktoré s domom starne.













