Moderný rodinný dom s umeleckým dizajnom fasády s oceľou

A moderný rodinný dom uprostred lesa – tak by sa v skratke dal opísať ťažký kov. Ale každý, kto si myslí, že táto budova je bežným príkladom minimalistickej architektúry, sa mýli. Štýlový fasádny obklad z ocele dodáva vile exotický vzhľad.
Moderný rodinný dom uprostred lesa sa otvára do krajiny

Klient poveril architektov z Huff projekty s úlohou a moderné rodinný dom navrhnúť a dokončiť. Stanovil aj špecifikáciu pre fasádu potiahnutú oceľou. Na prvý pohľad to môže znieť mimoriadne, ale vysvetlenie je veľmi jednoduché – majiteľ domu viedol rodinný podnik, v ktorom sa vyrábala oceľ, a inšpiroval sa týmto aspektom svojho profesionálneho života. Architekti výzvu prijali a navrhli jednopodlažnú budovu s jasnými líniami podľa minimalistických základných princípov. Bohato presklené vonkajšie steny umožňujú ďaleký pohľad na nádhernú zalesnenú krajinu – ale aby sa v lete príliš neohrialo, bol na fasádu nainštalovaný laserom rezaný detail.
Moderný rodinný dom so štýlovým zariadením

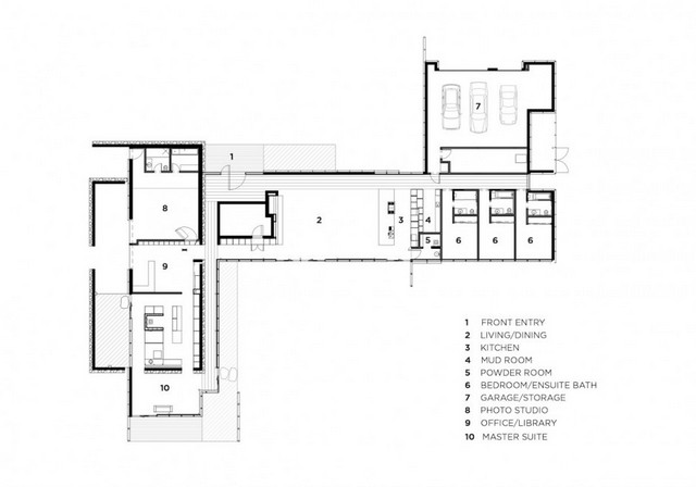
Vila má praktický tvar Z a pozostáva z troch štruktúr. Spálne sú vľavo, priestranný obývací priestor v strede a garáž za domom. V dome sú jednotlivé oblasti navzájom plynule prepojené.
Dom bol zariadený striedmo, ale veľmi štýlovo s moderným vstavaným nábytkom. Tiež v interiéri sú početné kovové detaily / kuchynská linka, čelo postele, stena sprchovacieho kúta /, ktoré boli nastavené ako akcenty. Použitie dreva uvoľňuje chladnú úspornosť kovu a vytvára útulnú atmosféru.
Štýlová kuchyňa so vstavanými spotrebičmi a kovovým pultom

Čelo postele v spálni – posteli je vyrobené z ocele, na rozdiel od drevenej steny

Kúpeľňa sa otvára do nádhernej krajiny

Sprchovací kút s oceľovou podlahou a dreveným umývadlom

Moderné a útulné zároveň – drevo uvoľňuje kovové detaily

Vonkajšie steny sú opláštené oceľou

Dom je veľmi dobre štruktúrovaný – jednotlivé miestnosti sa navzájom spájajú

Záhradné jazierko na dvore






