Moderný rodinný dom – atraktívny dizajn fasády s gabiónmi

Vizuálne príťažlivý, odolný a extrémne stabilný – gabion má mnoho výhod. Kamenný kôš sa však doteraz používal predovšetkým ako náhrada záhradného plotu. Doteraz – pretože nedávno v Poľsku jeden bol moderný rodinný domkoniec dokončená, kde gabión hravý akcent v inak minimalistickej štruktúre fasády.
Moderný rodinný dom – gabiónová stena púta pozornosť

Poľská architektonická kancelária Barycz a Saramowicz mal za úlohu vytvoriť a moderný rodinný dom navrhnúť a dokončiť čo najrýchlejšie. Architekti hľadali jednoduchý, rýchly a stabilný spôsob stavby. Zároveň ste však nechceli robiť kompromisy v štýle budovy a chceli ste vytvoriť atraktívnu a príjemnú fasádu. Gabiónový múr sa zdal byť jediným logickým riešením. A skutočne – kto by odolal čaru prírodných materiálov?
Moderný rodinný dom uprostred prírody

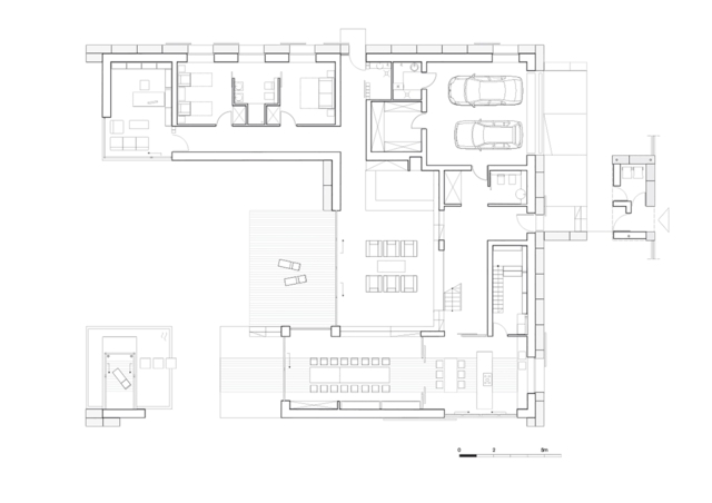
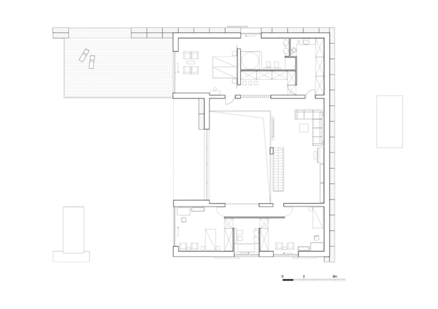
Vila v tvare písmena L pozostáva z dvoch štruktúr – jednoduchá konštrukcia umožnila stavbu podľa plánu. Severná vonkajšia stena bola pokrytá gabiónom / ktorý vyzerá do ulice / – a preto je dom v zime účinne chránený pred silným vetrom a v lete chránený pred zvedavými očami. Južná fasáda bola obložená drevom a bohato presklená. Vysoké okná od podlahy až k stropu prepúšťajú do domu dostatok slnečného svetla a poskytujú široký výhľad. Posuvné sklenené dvere vytvárajú bezproblémové spojenie medzi vnútornou a vonkajšou časťou. Vďaka použitiu prírodných materiálov fasáda z dreva a kameňa harmonicky zapadá do zalesnenej krajiny.
Moderný rodinný dom uprostred lesa s fasádou z dreva a kameňa

Zmena materiálov prináša fasáde štruktúru

Dom zatvorený na sever sa otvára do nádhernej krajiny cez veľkoryso zasklenú južnú stranu

Gabion chráni pred vetrom a chráni dom pred zvedavými očami

Budova v tvare L harmonicky splýva s okolím a ponúka ďaleký výhľad

Presné plánovanie umožnilo stavať na pláne




