Moderný dom v Los Angeles s kreatívnym konceptom nábytku

Bloom House je a moderný domov v Los Angeles, kde všetko návštevníka od prvého momentu fascinuje – dizajn, nábytok, miestnosti a neobvyklé tvary. Bol vyrobený architektom Greg Lynn navrhnutý a vyrobený pre filmového a televízneho režiséra v Los Angeles. Jeho architektúra je triezva, s jednoduchými líniami a je hlavne z betónu.
Moderný domov v Los Angeles od Grega Lynna

Dom Bloom má tiež vnútorný priestor, kde dominuje biela farba a moderné dekorácie dodávajú akcenty a farebnosť. Tieto jednoduché línie a biele steny vytvárajú predstavu o priestrannom a moderný domov v Los Angeles. Interiérový dizajn je definovaný súhrou nábytku, svetla a farieb. Na prvom poschodí je obývacia izba, jedáleň a kuchyňa. Otvárajú sa na malý predný dvor. Po celej dĺžke tejto otvorenej obývačky sa rozprestiera veľké stropné svietidlo neobvyklého tvaru.
Moderný domov v Los Angeles s bielym nábytkom

Aj keď nie prehnane luxusné Dom v Los Angeles je, že dizajnérsky nábytok vytvára úžasný koncept. Napríklad zaujímavý stôl so základňou z fialového baklažánu alebo stolička ako zlatý zub. Na hornom poschodí sú tri spálne. V kúpeľni, spálni a druhej malej kúpeľni sú steny vyrobené z tepelne tvarovaného Corianu.
Závesné svetlá v pracovnej oblasti

Dekorácia na stenu a drevo z kávy z masívneho domu

Stropné svietidlo neobvyklého tvaru

Dizajnérsky ostrov

biely interiérový dizajn

Greg Lynn Design

biela kuchyňa a farebné akcenty

Dizajnový nábytok – jedálenský stôl s baklažánovým podstavcom

Dizajn okna

Drevená posteľ

Kúpeľňový dizajn

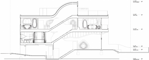
Architektonický plán

