Moderný betónový dom v Mexiku s vysokými stropmi a priestrannými izbami

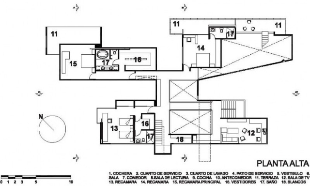
Architektonická firma RP Arquitectos navrhla Brioneho dom – a moderný betónový dom v Mexiku. Dom sa nachádza v zalesnenej časti mesta Xalapa a má dve poschodia, vysoké stropy a svetlý, otvorený interiér. Dom je na vrchole kopca a ponúka nádherný výhľad na priľahlý kopec, ktorý je chránený Inštitútom ekológie mesta Xalapa a je vyhlásený za prírodnú rezerváciu (inecol).
Moderný betónový dom od RP Arquitectos

Biely betón sa používa v interiéri aj exteriéri. V hlavnej vstupnej hale vás víta dvojitý strop. Priestranný interiér je ponorený do prirodzeného svetla a odhaľuje hravý dizajn s rôznymi cestičkami, schodiskami a úrovňami. Sklenený most vás zavedie do spální. Je to prvok, ktorý spája verejnosť so súkromnou sférou.
Moderný betónový dom s bielou fasádou

Rovnako vysoký strop pokračuje do jedálenského a obývacieho priestoru a vytvára rôzne efekty svetla a tieňa. Prírodnú krajinu si môžete vychutnať prostredníctvom veľkých sklenených okien. Prízemie je prakticky slepé, iba malé časti umožňujú výhľad von, napríklad pre príchod návštevníkov, pričom je zachované súkromie obyvateľov. Naopak, zadná fasáda sa otvára do krajiny a vytvára dialóg medzi vonkajškom a vnútrom. Prakticky všetky miestnosti na tejto strane majú sklenené steny. Dom možno vnímať ako veľkú sochu, kde v každej časti je miestnosť s vlastnou funkciou, ale zároveň táto časť tvorí celok. Bez druhej by nebolo možné interpretovať jednu miestnosť.
moderná architektúra v Xalape, Mexiko

zelené rastliny proti bielej fasáde

Sklenená stena a biely betón

Dvojitý výškový strop

malý salónik

Jedálenská a obývacia časť








