Moderné zariadenie bytu – súčasné s retro

Tento moderný dom sa nachádza v izraelskom Tel Avive. Dizajn pochádza od Jacobs-Yaniv Architects a kombinuje modernosť 50. rokov so súčasnými, modernými vplyvmi. Týmto spôsobom sa stal a moderný interiér bytu dosiahnuté, ktoré zodpovedá predstavám majiteľa. Doteraz žili na predmestí Tel Avivu a vychovávali tam svoje deti. Ale bolo jej želaním vrátiť sa späť do veľkomesta.
Moderný interiér bytu v Tel Avive

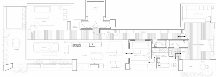
Jedným z prianí majiteľov domov bolo nájsť moderné bytové zariadenie a ponechať čo najviac voľného miesta. To by malo umožniť rôzne aktivity a rozhovory s celou rodinou. V celom byte, ktorý je na vzdialenom konci, je iba jedna spálňa. Všetky ostatné miestnosti, ako je kuchyňa, obývačka a jedáleň a ďalšie, boli rozmiestnené v druhej miestnosti a tvoria tak stred bytu. K dispozícii je tiež kancelársky priestor so stolom pre dve osoby. Hneď vedľa kuchyne sa nachádza aj herňa, ktorá môže slúžiť aj ako hosťovská izba a zahŕňa aj moderné zariadenie bytu. Dvoje posuvné dvere, ktoré oddeľujú miestnosť od kuchyne a chodby, zaisťujú potrebné súkromie.
Moderné zariadenie bytu – dubová a oceľová kuchyňa

Skutočným zameraním je moderné bytové zariadenie kuchyne. Skladá sa zo svetlých dubových skríň a má nápadné detaily. Podpery z čiernej ocele sú rovnako pôsobivé, pretože sú nielen praktické, ale aj skvele akcentujú v kuchynskej časti. Obsahuje všetky potrebné káble a elektrické vybavenie. To zahŕňa osvetlenie, reproduktory a ovládací panel systému inteligentnej domácnosti.
Jedáleň apartmánu je moderne zariadená

Moderne zariadené apartmány v kuchyni majú aj jedálenský stôl, kde si rodina môže každý deň pochutnať na jedle. Ak sa očakáva trochu viac návštevníkov, na pomoc príde veľký jedálenský stôl, ktorý sa nachádza hneď vedľa kuchyne a ponúka priestor až pre 10 osôb. Odtiaľ je tiež možné vidieť nádherné oleandrové kvetináče. Tieto sú priamo pred oknami a zaisťujú, aby sa obyvatelia cítili blízko k prírode napriek mestskému životu. Priamo oproti sa nachádza útulný salónik s pohovkou. Rodina tam môže kedykoľvek relaxovať. Vďaka veľkým oknám je táto časť veľmi svetlá. Ďalej sa odtiaľ dá vstúpiť na balkón, ktorý ponúka priestor pre moderné apartmánové zariadenie s posedením a nádherným výhľadom na mesto..
Moderný interiér bytu – spálňa s retro akcentmi

Spálňa má tiež malý balkón s pohodlnými posuvnými dverami. Má jednoduché, ale útulné a moderné apartmánové zariadenie, ktoré pozostáva okrem iného z prúteného nábytku. Patrí sem aj čelo postele. Rovnako ako v ostatných miestnostiach zdobí podlahu pri dreve orientálny koberec. Toto je jeden z retro dotykov v byte, na ktorý majitelia kladú dôraz. Aj tu sa vám naskytne nádherný výhľad na mesto, ktoré je v noci určite zakončené svetelnými šou. Spálňa má aj vlastnú kúpeľňu. Moderné zariadenie bytu pozostáva z jednoduchej bielej konzoly a bielych dlaždíc. Napriek tomu nechýba hrejivá atmosféra. To sa dosiahne drevenou podlahou a dlažbou v krémovej farbe.
Moderné zariadenie bytu – jednoduchá kúpeľňa

Ak ste zvedaví a chcete vedieť, ako vyzerá zvyšok moderného interiéru bytu, stačí sa pozrieť na nasledujúce obrázky. Zistíte, že moderné zariadenie nemusí vždy pôsobiť sterilne. Úžasné prostredie môžete vytvoriť iba pomocou niekoľkých teplých farieb alebo, ako je to v tomto prípade, pomocou štýlových kombinácií. Však sa presvedčte sami!
Písací stôl na chodbe bytu

Moderné zariadenie bytu – predsieň, hosťovská izba a herňa

Moderné zariadenie bytu v izbe pre hostí – príborník pre televíziu

Moderné zariadenie bytu – kuchyňa z dubového dreva a s oceľovým rámom





Dizajn od Jacobs-Yaniv Architects.
