Moderná obytná budova v Kolumbii obklopená zelenou krajinou

A moderná obytná budova leží východne od Medellinu a rámuje idylickú horskú krajinu Antioquia. Uprostred zelenej krajiny sa moderný dom dvíha zo zeme na dvoch úrovniach. Prvé poschodie sa horizontálne posúva cez druhú úroveň, oblečené do čiernej kamennej dyhy. Dizajnový jazyk rôznych fasád je doplnený použitím drevených žalúzií, oceľových nosníkov a sklenených prvkov. Tento horizontálny pohyb konštrukcií vytvára miznúce body v rôznych uhloch nasmerované na krajinu.
Moderný dom z Carlos Molina

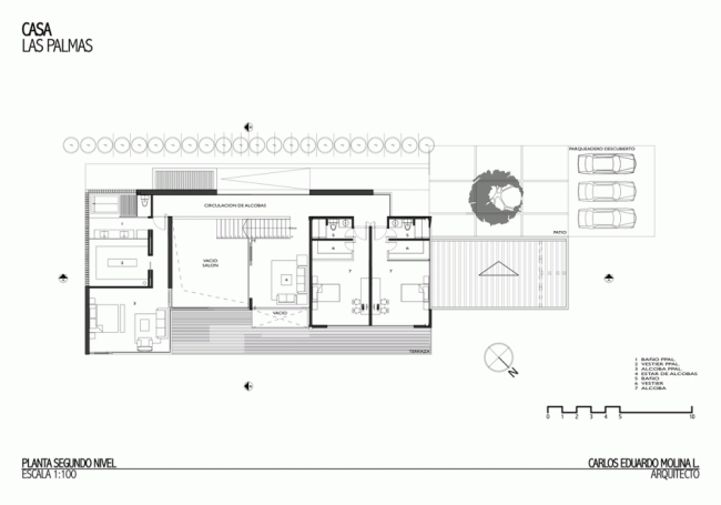
Hlavný vchod je na prepojení medzi jednotlivými úrovňami domu. Vstupná hala, ktorú pokrýva slnko cez drevenú pergolu, je akousi predbežnou etapou, ktorá vedie do novej krajiny. Dvojitý strop ponúka obývaciu izbu, jedáleň a plne otvorenú kuchyňu.
Moderný dom integruje do fasády kameň, drevo a sklo

Vnútri je prízvuk umiestnený na sklenenom schodisku, ktoré vedie do súkromných miestností na druhom poschodí. Vizuálny vzťah medzi týmito dvoma úrovňami je dosiahnutý dvojnásobnou výškou stropu v obývacej izbe. Vďaka tejto priestorovej dynamike je vzťah medzi vnútorným a vonkajším priestorom veľmi univerzálny.
zelená krajina

Terasa so skleneným zábradlím

dostatočné zasklenie

malé jazierko pred vchodom


Sklenené schody a veľké otočné drevené dvere











Architekt: Carlos Molina
Fotografie © Carlos Tobon
