Moderná architektúra od SAOTA- Pôsobivý dom na svahu s výhľadom na oceán

Hlavná cesta 1815 je projekt spoločnosti SAOTA Architects a nachádza sa vo Fresnaye, na predmestí Kapského Mesta v Južnej Afrike. Pôsobivé Dom na svahu s výhľadom na oceán sedí vysoko na kopci a ponúka nerušený výhľad.
Dom na svahu s výhľadom na oceán od spoločnosti SAOTA

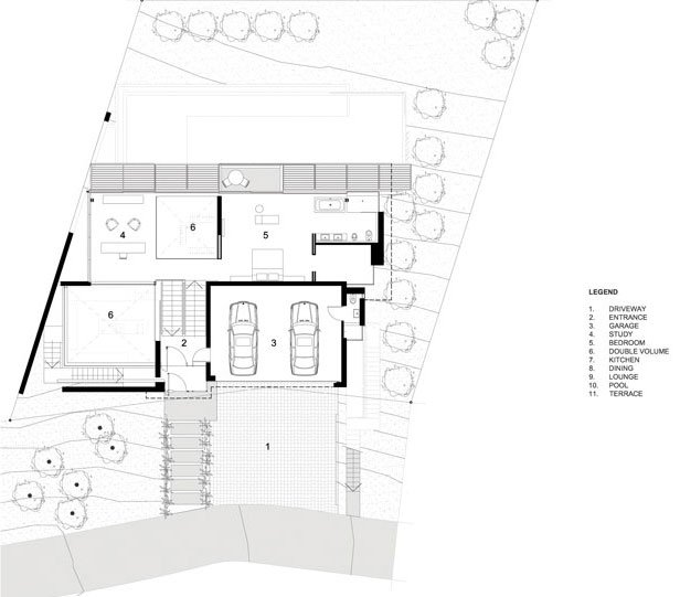
Zákazníci, mladý pár, chceli dom s dynamickou a výraznou architektúrou. Penzión bol oddelený od ich obývacej časti. Dom na svahu ponúka výhľad na Fresnaye na sever a na západ. Terén klesá veľmi strmo pozdĺž kopca a kvôli vysokému umiestneniu cesty a obmedzeniam tvaru budovy bol dom vyvýšený nad pozemkom na vysokých stĺpoch..
Moderný dom na svahu s výhľadom na oceán

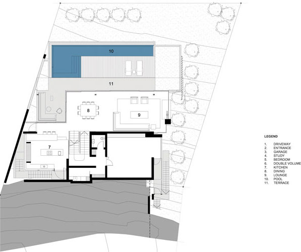
Dom je trojpodlažný. Prvé poschodie je hlavným obývacím priestorom s veľkou obývacou izbou a jedálňou so vstupom na krytú a otvorenú terasu pri bazéne. Kuchyňa je umiestnená tak, aby ste si mohli vychutnať nádherný výhľad cez presklenú strechu. Na druhom poschodí sa nachádza spálňa, šatňa a presvetlená suita s výhľadom na bazén nižšie.
Úžasný nekonečný bazén

Interiér je čisto biely, čo vytvára atmosféru čistoty a elegancie. Povrchy z kovu a skla zdôrazňujú tento žiarivý efekt. K vynikajúcemu zariadeniu patrí importovaná nemecká kuchynka, veľkoformátové žulové podlahy a obklady, bezrámové zasklenie a okná od podlahy až k stropu.
otvorené sklenené posuvné dvere
Žulové podlahy a biely nábytok

presklené okná od podlahy až k stropu

stropy s dvojitou výškou

Nástenná dekorácia s obrázkami Pop Art

priestranná kúpeľňa

Stavebné plány a pôdorysy



