minimalistický dom z dreva uprostred brazílskej džungle

Predstavujeme vám minimalistický Dom z dreva a sklo uprostred brazílskej džungle. Dom zaujme inovatívnou fasádou, veľkým bazénom a moderným zariadením v prírodných farbách.
Dom z dreva s inovatívnou fasádou

M.&M. je názov najnovšieho projektu architektov v Štúdiu MK27. To Dom z dreva je vybavená „flexibilnou“ fasádou – veľké drevené žalúzie otvárajú sklenenú fasádu a prepúšťajú dostatok slnečného svetla. Keď majitelia potrebujú viac súkromia, zatvorte drevené dvere. Dom má jednoduchú stavbu a je rozdelený na dva zväzky. Prvá os sa rozprestiera pred bazénom – je tu obývacia izba s jedálňou, obývačka a kuchyňa. Vysadená strecha spája modernú architektúru s prostredím a izoluje ju od vlhkosti. Druhou osou je bazén – jeho betónová konštrukcia je spojená s domom. Tieto dve zložky sa stretávajú pred vchodom do domu – kde bola zriadená útulná terasa s záhradným nábytkom.
Drevenica – moderné zariadenie

Vďaka kreatívnej fasáde, ktorá bude Dom z dreva dobre vetrané a chladné, dokonca aj v horúcich letných mesiacoch, ktoré sú typické pre oblasť Sao Paulo. Drevená terasa rozdeľuje dom na dve časti. V južnej časti sa nachádza garáž a domáce kino. V severnej časti sa nachádza kuchyňa, obývačka, jedáleň a spálne. Spojovacím prvkom v interiéri sú vysoké drevené stropy.
Obývacia izba s krbom a vysokými nástennými policami od podlahy k stropu

Jedáleň s rustikálnym nábytkom

Interiér charakterizujú drevené podlahy v obývacej časti a efektné obklady stien

Obývacia izba s rustikálnym vzhľadom

Kuchyňa so šikmým stropom

Nábytok vyrobený z kmeňa stromu v obývacej časti

Osvetlenie v záhrade

Inovatívna fasáda domu

Vonkajší bazén s nádherným výhľadom

Fasáda v južnej časti domu

Terasa

Fasáda domu prepúšťa dostatok slnečného svetla

Západ slnka v Brazílii

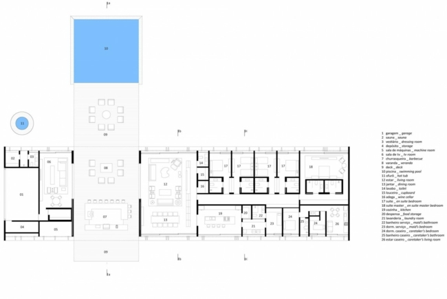
Plán domu – pohľad zhora

Skica stavby domu – bočný pohľad

