Jednoposchodový dom s plochou strechou v Brazílii odetý teakom

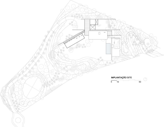
BV dom z Jacobsen Arquitetura je a jednopodlažný dom s plochou strechou, ktorá sa tiahne po zelených lúkach Porto Feliz. Je obklopený golfovými ihriskami a bol navrhnutý ako víkendový domov pre rodinu zo São Paula. Architekti sa rozhodli pre jednoposchodový, ale rozľahlý dom, aby využili výhody krajiny na diaľku, ako sú jazerá a pohoria.
Dom s plochou strechou od Jacobsena Arquitectura

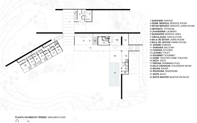
Dom je rozdelený na dve krídla, z ktorých každé má špecifickú funkciu. Najdôležitejšia časť zahŕňa sociálne priestory domu a terasu na relaxáciu. Izby slúžok sú vedľa garáže a so zvyškom domu sú prepojené priesvitnou pergolou. Expresívnou črtou je použitie neortogonálnych uhlov, ktoré smerujú pohľad von, čím sú miestnosti menej tuhé. Tri osi, ktoré tvoria územie, sú označené kamennými múrmi hrubými takmer meter.
BV dom s plochou strechou v Brazílii

Blok spálne má drevené panely, ktoré môžu zahŕňať odkvapy a verandu, takže ich je možné prispôsobiť ako vnútorné alebo vonkajšie priestory, pričom rám bude vždy chránený pred slnkom a dažďom. Teakový obklad má vizuálne príťažlivé teplo. V oddychových miestnostiach je domáce kino, detská herňa, WC, mokrá a suchá sauna a šatňa.
Fíková fasáda 
Kamenný múr a palmy

Krytá terasa







Pôdorys a stavebné plány



