Geometrické tvary ako prvok prestavby interiéru a fasády – radovej zástavby

Rekonštrukciou bol poverený obyčajný radový dom vo Victorii v Austrálii. Ťažiskom nového dizajnu by mala byť umelecká inštalácia od Rachel Whiteread a tradičná fasáda domu s verandou sa nesmie výrazne líšiť od ostatných viktoriánskych domov v tejto oblasti. Andrew Simpson Architects splnili všetky požiadavky klienta a majú geometrických tvarov ako aj na fasáde zadného domu, ako aj v interiéri.
Geometrické tvary ako dizajnový prvok v modernej renovácii radového domu

Radový dom je rozšírený o budovu v zadnej záhrade, takže je možné využiť aj jej časť. V tieni dekoratívneho dreva je možné umiestniť záhradný stôl a k dispozícii je aj primeraná clona súkromia.
Geometrické tvary kontrastujúce s okolím – okres vo Victorii, Austrália

Fasáda zadného domu sa štýlom a proporciami výrazne líši od predného. Je obložený prírodným drevom, ktoré prirodzene zošedlo. Vonkajšie steny sú šikmé, rovnako ako okná a balkónové dvere, ktoré vedú do modernej obývačky s kuchyňou.
Fasáda domu na ulici – obyčajný radový dom

Inštalácia moderného umenia je začlenená do obývačky s kuchyňou. Tiahne sa cez steny a strop a je pútavá. Ich geometrické reliéfne formy slúžia ako inšpirácia a východiskový bod pre celú novú štruktúru.
Moderná fasáda na druhej strane radového domu

Drevený obklad fasády domu je prirodzene sivý

Podľa toho geometrické tvary fasády domu a okien

Prvky v klasickom štýle na chodbe – podlahové dosky, štuky a moderné dizajnové svetlá

Moderná čiernobiela kuchyňa s kuchynským ostrovom

1993 umelecká inštalácia Rachel Whiteread

Geometrické tvary formujú redizajn interiéru a fasády

Geometrické tvary reliéfu s atraktívnym, bielym, lesklým vzhľadom

Moderná otvorená kuchyňa s drevenou podlahou otvorenou do záhrady cez balkónové dvere od podlahy až k stropu

Zaujímavé reliéfne tvary v centre obnovy radového domu

Škvrny integrované do reliéfnych foriem stropu

Skutočne inšpiratívne pracovisko so zaujímavým výhľadom cez okno

Moderná kúpeľňa v bielej farbe s dažďovou sprchou a umývacím stĺpikom

Moderná kúpeľňa v bielom prevedení s vaňou za presklenou stenou

Schematické znázornenie umeleckej inštalácie v dome

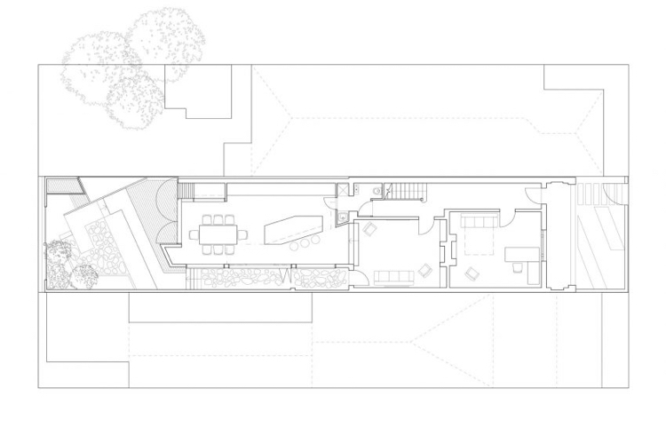
Pôdorys a dispozícia miestnosti prízemia s časťou záhrady

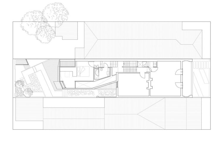
Plán a rozloženie miestnosti v hornom poschodí

Plán domu v nehnuteľnosti

Bočný pohľad v reze – rekonštrukcia radovej zástavby

Mestský dom a ďalšie budovy v okolí

* projekt od Andrew Simpson Atchitects
