Farba biela pre interiér i exteriér – moderný domov v Kalifornii

Architektonický dom v Redondo Beach v Kalifornii v USA sa vracia k avantgardnému a súčasnému pojmu domova moderného metropolitu. Obdĺžnikové rozmery „štandardných“ budov pripomínajú iba dom a garážové brány na ulici domu. V ňom svieti hlavná štruktúra Farba biela a druhý – v obmedzenej šedej. Netradičný tvar okien a otvorov – predĺžená voština – robí veľký dojem.
Avantgarda bielej farby a architektúry v Kalifornii, USA

V architektúre, ako aj v koncepcii miestnosti, je možné porozumieť radikálnemu a striktne geometrickému dizajnovému jazyku. Otvory v podlahe a strope, medzi podlahami v interiéri, vytvárajú nový koncept interiéru aj exteriéru. Vonkajšie okná majú predĺžený voštinový tvar, ktorý nájdete aj vo vnútri.
Biela farba na fasádu a interiér

V dizajne fasády, ako aj v interiéri, prevláda biela farba, ktorá zaisťuje moderný vzhľad v minimalistickom štýle. Zariadenie nábytku dodržiava priame línie fasády a vyznačuje sa geometrickými proporciami. V interiéroch kontrast vytvárajú jednotlivé monochromatické akcenty, kusy nábytku, ktoré dodávajú dizajnu miestnosti osobný nádych.
V modernej kuchyni prevláda biela farba

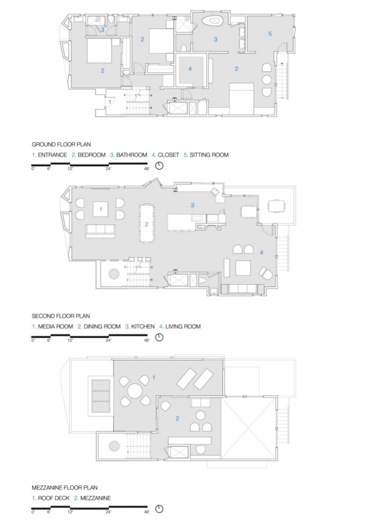
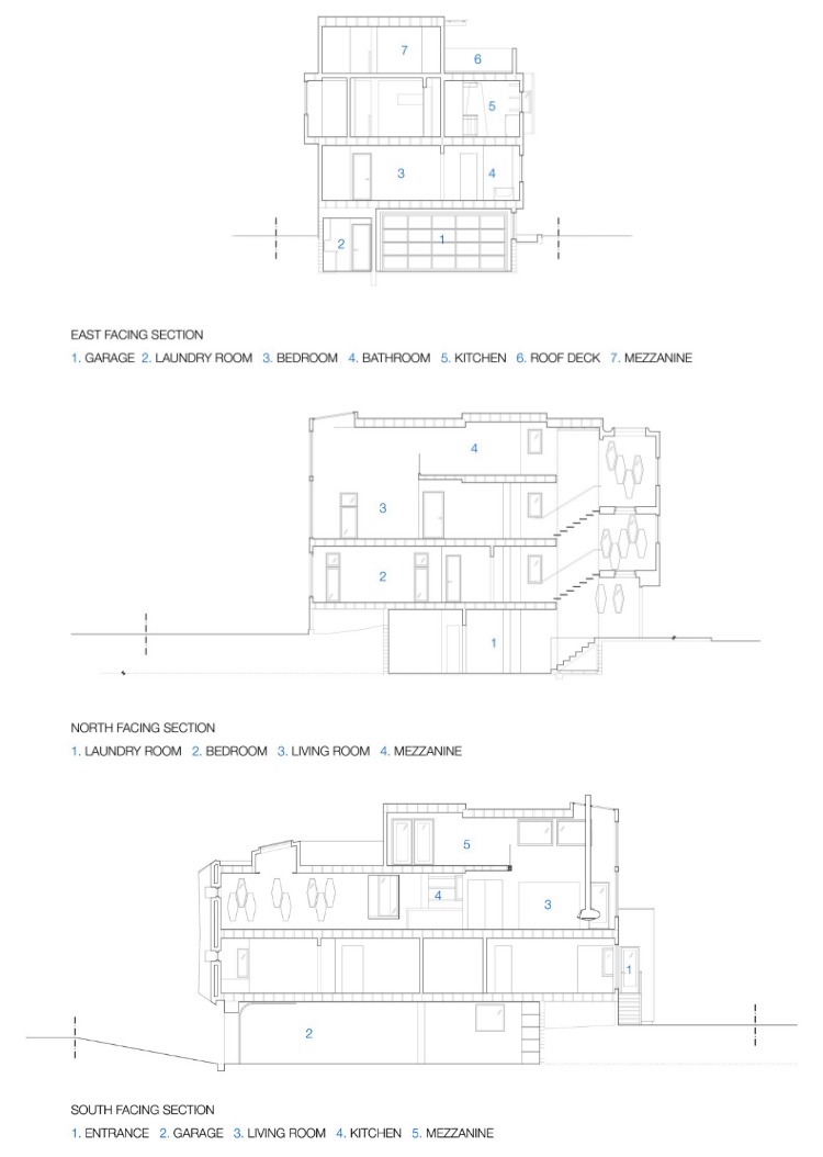
Dom sa rozprestiera na troch úrovniach a celkovo má obytnú plochu zhruba 353 metrov štvorcových. Obyvateľom je k dispozícii sedem izieb, vrátane garáže, pivnice, kuchyne, obývačky, hlavnej spálne a medziposchodia s exkluzívnou terasou s výhľadom na more. Architekti Patrick Tighe navrhli súkromný dom a navrhli ho pre rodinu Garissonovcov.
Vonku biela farba, na terase s výhľadom na more

Farba biela a ako akcent – gauč s čalúnením v čerstvej pistáciovej zelenej

Farba biela a pre kontrast – čierna sedačka a koberec

Vnútri biele – pohľad cez okno v tvare medu

Skutočná hra svetla v úplne bielom schodisku

Geometrické tvary a biela Farba v interiéri

Okrúhle otvory cez podlahu a strop

Otvory a okná sa pohrávajú s priestorom

Biele a redukované, rovné čiary – minimalistická kúpeľňa s oknom

Moderný dom v Kalifornii – západný a východný pôdorys fasády

Moderný dom v Kalifornii – pôdorys a pôdorys

Moderný domov v Kalifornii – bočný pohľad na stavebný plán

* projekt od Architektúra Patrick Tighe
