Drevo a pohľadový betón v obývacej izbe a vonkajšej časti – duo chladného materiálu

Voľba materiálov je rozhodujúca pre dizajn a architektonický charakter projektu. Architekti sa rozhodujú pre jeden alebo druhý rad materiálov, väčšinou ovplyvnený krajinou alebo miestnymi podmienkami, ako sú susedné budovy alebo klíma. Niektoré materiály ako drevo a betón, oceľ a tehly, farby a sklo k sebe jednoducho patria. Ich kombinácia môže viesť k dokonale harmonickým výsledkom. Architekti a dizajnéri zo spoločností Surfside Projects a Lloyd Russell skombinovali drevo a pohľadový betón v obývačke a vonkajšom priestore v rámci svojho projektu „Avocado Acres House“ v Encinitas v USA..
Dom avokáda Acres s podzemnou strechou

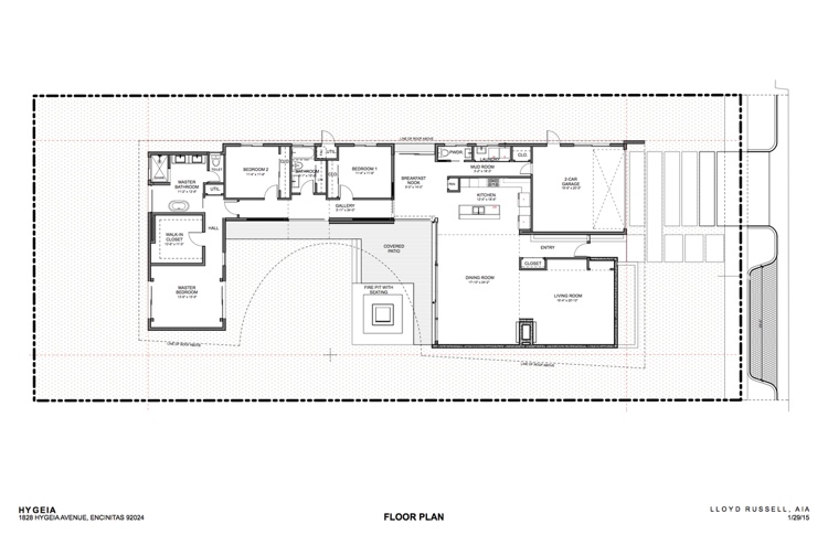
Zvláštnosťou architektúry domu je plochá strecha v tvare U. Tento charakteristický tvar strechy charakterizuje celý dizajn domu. Vzniká súkromný vonkajší priestor, kde si majitelia domov môžu nerušene užívať prírodu a krásne počasie. Okolo tejto oblasti je navrhnutý celý obytný priestor tak, aby sa naň dalo dostať alebo z neho vidieť z každej miestnosti. To umožňujú dvere a okná na terase od podlahy až k stropu. Celý obytný priestor 260 metrov štvorcových sa rozprestiera na jednej obytnej ploche vrátane garáže. Izby sú priestranné, svetlé a príjemné. Použitie dreva a pohľadového betónu v obývacej izbe a vonku vytvára príjemnú a útulnú atmosféru a plynule rozširuje obývačku von..
Drevo a pohľadový betón v obývačke i vonku pôsobia domácky

Priestranné izby sú veľmi priateľské a štýlové. Dekor je silne ovplyvnený zlatou érou v americkom nábytkárskom priemysle v 50. a 60. rokoch. Jednoduchý a funkčný nábytok s vysoko kvalitným čalúnením v sviežich farbách vytvára pozitívnu atmosféru v interiéri aj na terase. Moderná otvorená kuchyňa a priestranná kúpeľňa sú navrhnuté v bielej farbe. Nechýba ani farebný rad – tyrkysové dlaždice dodávajú hravé akcenty. Obrázky moderného umenia na stenách v každej oblasti tohto unikátneho domu dodávajú individuálny nádych.
Drevo a pohľadový betón v obývacej izbe a vonkajšej časti – duo chladného materiálu




















* projekt od Surfside projekty & Lloyd Russell
