Drevené trámy a vápenec sú moderným spôsobom kombinované do interiéru alebo exteriéru

Súkromný dom s nádherným výhľadom na blízke pobrežie oceánu v juhovýchodnej Austrálii navrhol v roku 2015 Steve Domoney Architects v plnom spojení s okolitou krajinou. Použité materiály – Drevené trámy a vápenec, harmonizovať s okolím a vytvárať útulnú atmosféru vo vnútri aj vonku.
Moderná kombinácia drevených trámov a vápenca – plážový dom v Austrálii

Dizajn, ako aj interiér, ako keby sa pozeral von, stavia na kontrastoch a autentických textúrach. Dizajn je jednoduchý, veľmi priamy, harmonicky vyvážený medzi tmavými odtieňmi a bielou ušľachtilou optikou. Veľkoformátové fasádne prvky a panoramatické okná z ocele dodávajú stabilnú a udržateľnú budovu s výrazným dizajnom.
Drevené trámy a vápenec – kombinácia materiálov zvonku i zvnútra

Použité materiály, ako napríklad oceľ, variácie drevených trámov a vápenca, sa navzájom efektívne kombinujú a je možné ich chápať ako nezameniteľné štýlové prvky v dizajne záhrady, fasády a interiéru domu..
Moderná kombinácia oceľových a drevených nosníkov – terasa na poschodí

Prvky vyrobené z ocele – ako fasádne panely, zasklenie, konštrukcia a podobne – poskytujú štruktúrovanie a dodávajú domu alebo interiéru jasné kontúry. Vnútri aj vonku je podlaha položená rovnakým materiálom – vápencom v prírodnej, teplej krémovej farbe. V kuchyni je vyleštený do obzvlášť brilantného lesku a kombinovaný s brúsenou nehrdzavejúcou oceľou. Asi hlavným prvkom interiérového dizajnu je výrazná textúra a masívne prvky drevených trámov. Autentický, mierne dymový povrch je možné vidieť vo viacerých variantoch – ako obklady stien alebo stropov, interiérové dvere a nástenné police v interiéri domu.
Veľkoformátové okno a otočné dvere pri vchode do domu

Drevené trámy a vápenec moderne skombinované na chodbe

Panoramatické okná, drevené trámy a vápenec zaisťujú v modernom plážovom dome pocit pohodlia

Drevené trámy a vápenec v modernej obývačke plážového domu

Moderná kuchyňa – vyrobená z pevného materiálu Drevené trámy a vápenec na podlahu

Drevené trámy a lesklé vápencové povrchy v modernej kuchyni

Oceľové prvky, stenový a stropný dizajn s Textúra drevených trámov a vápenec na podlahu

Nástenná polica s drevenou trámovou štruktúrou – moderná pracovňa s tichou atmosférou

Moderná spálňa s integrovanou kúpeľňou – drevenou trámovou posteľou a vápencovou podlahou

Kúpeľňa integrovaná do priestoru na spanie – rozdeľovače miestností z drevených trámov, na podlahu vápenec

Pevné otočné dvere do spálne vyrobené z dreveného trámového materiálu

Údené drevo a vápenec sú šikovne použité aj v modernej kúpeľni

Svetlá detská izba so šťastnou atmosférou

Bar v suteréne harmonicky zariadený so zvyškom dizajnu domu

Moderný plážový dom v Austrálii – Plán suterénu

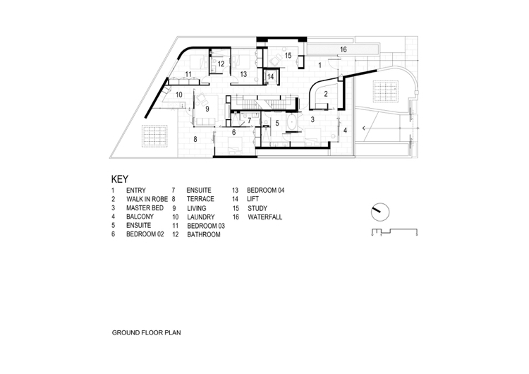
Moderný plážový dom v Austrálii – Prízemie

Moderný plážový dom v Austrálii – plán horného poschodia

* projekt od Steve Domoney Architects
