Dovolenkový dom v Chorvátsku s bazénom a minimalistickou architektúrou

Luxusný a priestranný Dovolenkový dom v Chorvátsku s krytým bazénom a krásnou minimalistickou architektúrou zapôsobí na predmestí Záhrebu.
Dovolenkový dom v Chorvátsku s minimalistickou fasádou

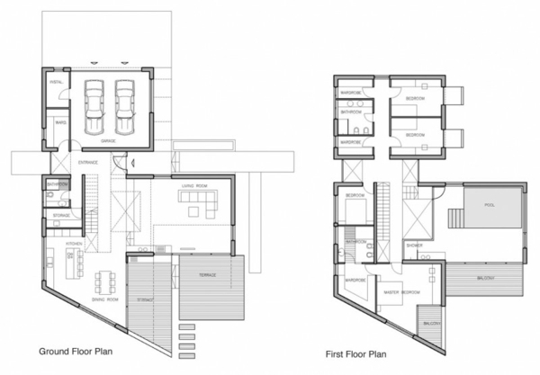
To Dovolenkový dom v Chorvátsku, Hovorí sa mu J20 a bol navrhnutý a koncipovaný podľa základných minimalistických princípov. Fasáda je čiastočne biela, čiastočne obložená tmavým drevom. Táto oblasť je obývaná a architekti sa rozhodli pre čiastočne otvorenú budovu. Severná strana domu chráni pred zvedavými pohľadmi, zatiaľ čo južná časť s výhľadom do záhrady je bohato presklená. Dom pozostáva z dvoch zväzkov – v jednom je obývacia izba, detské izby a kúpeľne, v druhom je kuchyňa s jedálenským kútom a spálňa rodičov. Všetci sa pozerajú na nádvorie. Na druhom poschodí bolo vybudovaných niekoľko balkónov, aby si obyvatelia mohli vychutnať nádherný výhľad.
Dovolenkový dom v Chorvátsku – interiérový dizajn a bazén

Vo vnútri je elegantný výber materiálov pôsobivý – schodisko a ďalšie akcenty z interiéru sú obložené drevom. Zostávajúce steny sú pokryté matnými bielymi obkladmi. Interiér pôsobí domácky a pohodlne – v obývačke sa sedacia súprava z bielej kože stará o to, aby sa majitelia domov a ich hostia cítili ako doma. Bazén na prízemí ponúka osvieženie v teplých letných dňoch. Jemné stropné svetlá večer osvetlia dom. Je to malý ostrov pokoja uprostred veľkého mesta, kde si môžete oddýchnuť od každodenného života. To Dovolenkový dom v Chorvátsku bol z DAR612 Architekti navrhli. Viac fotografií domu nájdete vo fotogalérii nižšie.
Bazén na prvom poschodí s LED osvetlením

Chodba so svetlíkom a bielymi stenami

Drevené schodisko

Moderný interiérový dizajn v minimalistickom štýle

Interiér z domu v Chorvátsku

Vchod do domu

Chata s balkónmi na druhom poschodí

Moderná fasáda domu s osvetlením

minimalistická fasáda domu

minimalistická architektúra v Chorvátsku – plán

