Dom so záhradným jazierkom uprostred lesa

Casa Do Lago je moderný Dom so záhradným jazierkom uprostred lesa. Nachádza sa v blízkosti golfového ihriska, obklopeného vysokými stromami, s veľkoryso zasklenou fasádou, ktorá sa otvára do okolia, dom pri jazere, ako znie preklad z taliančiny, je zaujímavou kombináciou tradičnej a modernej architektúry.
Dom so záhradným jazierkom – zaujímavá fasáda s múrom z prírodného kameňa

To Dom so záhradným jazierkom kombinuje pohodlie a funkčnosť. Izby sú veľké, svetlé a majú vysoké stropy. Vonkajší bazén je plynule prepojený s krytým bazénom. Architekti z Frederico Valsassina pri vývoji projektu zohľadňoval terén a prispôsobil dom svojmu okoliu. Stena z prírodného kameňa vizuálne a tematicky oddeľuje obývaciu časť a súkromnú časť, kde sú umiestnené spálne a kúpeľne. Každá izba má krásny výhľad na okolie, kde zelený les a modré jazierko prispievajú k relaxácii a rekreácii. V suteréne bolo nainštalovaných niekoľko posuvných sklenených dverí, aby bolo možné v prípade priaznivého počasia obývaciu izbu premeniť na terasu. To je tiež dôvod veľkého príťažlivosti tejto modernej architektúry – vnútorné a vonkajšie priestory sú šikovne kombinované.
Dom so záhradným jazierkom – návrh interiéru

To Dom so záhradným jazierkom bol zariadený čiernobielym nábytkom. Niekoľko sedacích súprav ponúka dostatok priestoru pre celú rodinu. Mramorové dlaždice na podlahe prispievajú k ušľachtilému vzhľadu zariadenia. Zaujímavé umelecké diela na stenách sú jedinou ozdobou, ktorú tento dizajn potrebuje. V spálni sa architekti sústredili na to najdôležitejšie – stačí manželská posteľ, nočný stolík so stojatou lampou. Drevené podlahy prispievajú k príjemnému prostrediu. Kúpeľne sú zariadené v minimalistickom štýle, úplne v bielej farbe.
Útulné posedenie v obývačke

Vnútorný bazén

Vchod do domu – ochranná strecha a kamenná cesta

Terasa s ležadlami

Záhradné jazierko so zlatou rybkou

Biela fasáda s veľkými oknami

Stena z prírodného kameňa ako akcent na fasáde

Moderný dom v lese

Skica stavby domu

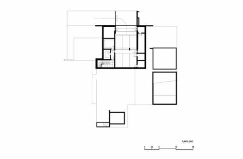
Plán domu – úrovne

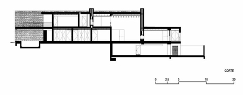
Skica domu – pôdorys

Fotografie od: FG + SG
