Bytové zariadenie, ktoré kombinuje rustikálny a priemyselný

Casa Tomas je projekt od LAB, sa nachádza v Barcelone v Španielsku a bola dokončená v roku 2013. Byt s rozlohou približne 80 metrov štvorcových má a Bytové zariadenie, ktorá jedinečným spôsobom kombinuje rustikálne a priemyselné prvky.
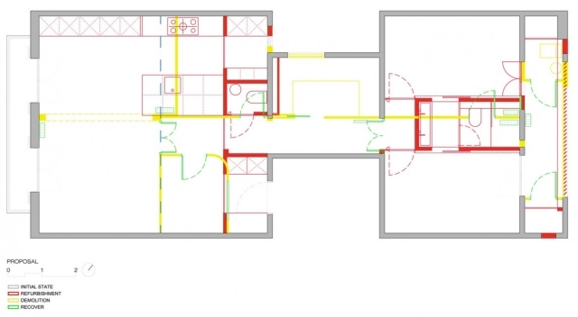
Vybavenie domu na princípe dimorfizmu

Byt bol rozdelený na dve časti – sociálnu a súkromnú. Izba v strede spája tieto dve miestnosti, ale nie je to len obyčajný priechod, ale môže slúžiť aj ako obývací priestor. Napriek tomu, že obe ostatné oblasti sú veľkosťou a tvarom takmer podobné, dizajnom sa úplne líšia. Sociálna oblasť je otvorený priestor otvorený do ulice, zatiaľ čo súkromný priestor je priestorovo oddelený a orientovaný do vnútorného dvora. Hlavná obývacia izba sa rozkladá na balkón, zatiaľ čo druhá časť je oddelená od vonkajšej časti zasklenou verandou a popínavé rastliny sú chránené pred nechceným výhľadom. Balkón prepúšťa viac denného svetla do obývačky, jedálne a kuchyne, zatiaľ čo verandu dobre tienia rastliny.
Bytové zariadenie od LAB

Dimorfizmus je biologický termín pre jav, v ktorom sa u rovnakého druhu objavujú dva rôzne anatomické aspekty. Na to bol vytvorený tento princíp Bytové zariadenie použité. V spoločenskej obývacej časti je to voľne stojaci kuchynský ostrov. V priestore na spanie vyzerá kúpeľňa ako kus nábytku, pretože stúpa z podlahy a nedosahuje na trámy klenutého stropu. Dve spálne majú prístup do tejto kúpeľne. Predsieň, toaleta a sklad domácich spotrebičov sú obložené dekoračnými dlaždicami a slúžia súčasne ako obývačka, jedáleň a kuchyňa. Toto priestorové rozdelenie hrá s protikladmi, symetriou a rovnováhou.
zaujímavý dizajn stropu

chodba navrhnutá s dekoratívnou dlažbou

malá spálňa

Prístup na presklenú verandu









Fotografie od José Hevia
