Betónový dom s nádvorím a bazénom – útulná mestská vila

A Betónový dom s dvorom ponúka všetko, čo by ste chceli od útulnej mestskej vily – modernú fasádu, ktorá ponúka súkromie, bazén v záhrade a pohodlný obývací priestor. Ukazujeme vám minimalistický dom od renomovanej architektonickej firmy Jorge Bolio Arquitectura.
Betónový dom s nádvorím v minimalistickom štýle

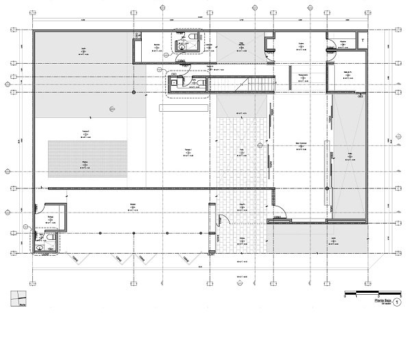
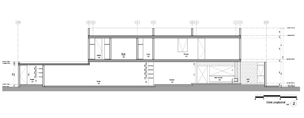
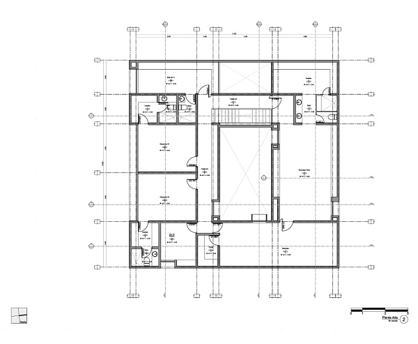
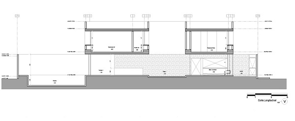
To Betónový dom s dvorom bol postavený na mieste 20 x 30 metrov vo veľmi husto osídlenej oblasti Merida v Mexiku. Na severnej strane domu je úzky vnútorný dvor, ktorý do domu vnáša čerstvý vietor. Dvor je zároveň dobre strážený dreveným plotom. V južnej časti budovy je ďalšia záhrada, kde môžete relaxovať v bazéne. Pevná konštrukcia je navrhnutá podľa minimalistickej tradície – zatiaľ čo suterén sa otvára do záhrady cez presklenú stenu, v druhom poschodí sú spálne a kúpeľne.
Betónový dom s vnútorným dvorom a pohodlným interiérom

Vizuálne prepojenie vytvárajú kamenné dlaždice na chodbe, drevené žalúzie a drevená panelová stena vo vnútri. Monolitická štruktúra domu chráni súkromnú oblasť majiteľa domu – okná a sklenené dvere, ktoré otvárajú dom do vnútorného dvora, sú strategicky umiestnené. Kontrasty v interiéri a na fasáde sú výsledkom dômyselného výberu materiálov – drevo, betón a kameň vyrába spoločnosť Jorge Bolio Architekti šikovne kombinovali. Izby sú zariadené pohodlným čalúneným nábytkom. V obývacej časti je jedálenský kút s dreveným stolom a stoličkami, v obývacej časti sa nachádza časť s posedením so sedačkou, konferenčným stolíkom a stoličkou. Aj keď nič nechýba, dom pôsobí priestranným dojmom. Biela farba stien otvára dom a robí ho jasnejším. Je to vynikajúci príklad toho, ako môže mestská vila vyzerať na obmedzenom priestore.
Jedáleň s dreveným stolom a ľanovými závesnými svetlami

Obývacia izba s rozkladacou pohovkou a konferenčným stolíkom

Kamenná dlažba ako podlaha vo dvore

Malé vnútorné nádvorie s betónovými lavicami
Okná majú výhľad do vnútorného dvora

Chodba s kamennou dlažbou a drevenou stenou

Prideľovaná záhrada s bazénom a patiom

Prideľovaná záhrada s bazénom

Betónový dom s blokovou výstavbou

Malomestská vila – zrub s vysokým plotom

Dobre chránený súkromný priestor – obrazovka súkromia pre záhradu


Osvetlenie v záhrade a nad bazénom

Moderné osvetlenie fasády a bazéna

Plán domu





