Zrekonštruovaný rodinný dom s bazénom v Španielsku – moderná architektúra

Projekt spočíval v renovácii jedného Rodinný dom s bazénom a záhrada v krásnej vilovej štvrti Bellaterra- v Cerdanyola del Vallès. V blízkosti sa nachádza Barcelona a prírodný park Collserola. Majitelia, rodina, ktorá má rada ľahký a priestranný interiérový dizajn, kúpili dom kvôli jeho fantastickým výhľadom, aj keď od začiatku vedeli, že potrebuje radikálnu obnovu..
Samostatne stojaci dom s bazénom postavený vo svahu

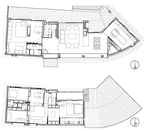
To Rodinný dom s bazénom bol postavený na svahu. Má 2 nadzemné podlažia, suterén a veľa vonkajších priestorov. Celková plocha je 442 m2. Záhrada aj dom vykazovali značné problémy, ktoré bolo potrebné vyriešiť. Dom mal veľmi nepravidelný objem a hranaté steny. Terasy a okná mali mnoho rôznych veľkostí a spojenie s vonkajšou oblasťou bolo veľmi zlé. Pôvodne neboli ani vonkajšie priestory navrhnuté veľmi dobre – so zadnou záhradou na oveľa nižšej úrovni ako dom. Záhrada končila na strmom svahu, čo veľmi komplikovalo údržbu alebo užívanie si. Koniec koncov, interiér bol úzky a tmavý, rozdelený na mnoho malých miestností a prepojených mnohými dlhými chodbami.
Zrekonštruovaný rodinný dom s bazénom – nová fasáda a vonkajší dizajn

Architekti z YlaB Architectos Tobias Laarmann a Yolanda Yuste López chceli exteriér tohto Rodinný dom s bazénom zjednotiť. Za týmto účelom boli nové okná a dvere prispôsobené existujúcim dverovým a okenným otvorom tak, aby miestnosť mohlo zaplaviť denné svetlo. Slepá severná strana alebo fasáda s úzkou a zbytočnou verandou si vyžiadali radikálny zásah. Veranda bola rozobraná a obývacia izba – na verandovom priestore – bola rozšírená. Na jeho mieste sa objavilo 13-metrové okno s drevenými rámami a dvere, ktoré spájajú obývaciu izbu a predný dvor.
Moderný dom s niekoľkými možnosťami relaxácie

To Rodinný dom s bazénom ponúka veľa príležitostí na relaxáciu a útočisko po rekonštrukcii. V zadnej časti záhrady bolo vytvorených niekoľko terás na rozšírenie domu. Prvá terasa bola na prízemí domu a pokrytá prírodným kameňom. Na terase bol nainštalovaný luxusný bazén. Drevené schodisko vedie do záhrady s terasou.
Pôsobivý interiérový dizajn

To Rodinný dom s bazénom od Ylab bola dokončená v roku 2012 a zariadená moderne a pohodlne. Prízemie bolo prerobené na veľkú, útulnú obývaciu izbu s jedálenským kútom, obe oddelené veľkým krbom z prírodného kameňa. Kuchyňa bola postavená vzadu. Obývacia izba sa otvára na zadnú terasu veľkými posuvnými sklenenými dverami, ktoré boli kompletne nainštalované na fasáde. Výsledkom je svetlý, priestranný interiér s mnohými vizuálnymi prepojeniami na vonkajší priestor. Na druhej strane vstupnej haly je súkromná miestnosť, kancelária a hudobná miestnosť, ktoré sú od ostatných miestností oddelené dvoma veľkými posuvnými dverami.
Rekonštrukcia domu v Bellaterre

Kúpeľňa s elegantným vzhľadom

Svetlý obytný priestor

Svetlá miestnosť – drevené panely

Stropné osvetlenie v domácej kancelárii

Pôdorys rodinného domu

