Úzky dom Shoei v Japonsku sa vyznačuje japonským architektonickým štýlom a veľkým počtom obytných priestorov

V dnešnom príspevku by sme vám chceli predstaviť japonský dom “Shoei House” v Kjóte, ktorý je vďaka svojej jedinečnej architektúre nepochybne jedným z architektonických majstrovských diel. Úzky a dlhý „dom Shoei“ navrhla v roku 2017 spoločnosť Hearth Architects. V Japonsku je už niekoľko rokov k dispozícii japonský architektonický štýl, ktorý sa v Európe nenachádza. „Shoei House“ zaujme svojou jedinečnou japonskou architektúrou. Nové architektonické nápady, ako napríklad takzvané „úhorové postele“, vznikajú kvôli nedostatku priestoru, kde je postavená aj najmenšia medzera.

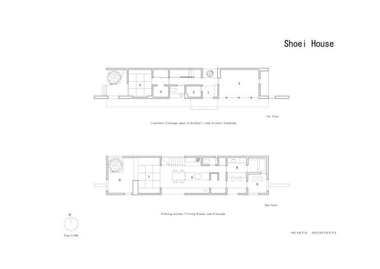
Úzky a dlhý dom v Kjóte má tento konkrétny architektonický štýl. Unagi no Nedoko, takzvané úhorové postele, sú domy, ktoré ponúkajú na najmenších pozemkoch obrovské množstvo obytného priestoru. Dom Shoei bol napríklad navrhnutý pre pozemok široký 5,5 metra. Moderný japonský dom siaha od východu na západ a má celkovú dĺžku 32 metrov. Tento japonský architektonický štýl sa v Kjóte etabloval ako tradičný štýl domu. Vzhľadom na orientáciu domu zo severu a zo sladkého nepreniká takmer žiadne svetlo. To bol dostatočný dôvod na rozdelenie miestností na dve poschodia. V tomto úzkom dome nie je žiadny zbytočný priestor.

Na prvom poschodí je vchod do domu, sklad, detská izba, šatňa a spálňa. Obývacia časť, kuchyňa s jedálenským kútom, práčovňa a veranda sa nachádzajú na druhom poschodí. Celková obytná plocha je 115,72 metrov štvorcových. Ďalším vrcholom v Shoei House je množstvo rastlín a stromov, ktoré boli vysadené vo vnútri aj vonku. Takže môžete cítiť prírodu a ročné obdobia, aj keď ste vo vnútri. Vysoký strom siaha od prvého poschodia po strechu a dokonca pozerá aj zo strešného okna. Interiér domu sa vyznačuje pokojným a jednoduchým japonským štýlom. Ako podlahová krytina bolo použité teplé drevo, ktoré je v harmónii s drevenými trámami na strope. Zo svetlého dreva bol vyrobený aj kuchynský a kúpeľňový nábytok.



















* projekt od Hearth Architects
