Svetlá klinkerová fasáda a sklo charakterizujú architektúru tohto domu v Bellport

Krásny dom, ktorý dnes predstavujeme, je postavený na južnom pobreží ostrova Long Island a presviedča nádhernou polohou. Z domu a záhrady sa otvára výhľad na vodnú cestu a prechádzajúce lode. Z brehu sa naopak odkrýva pohľad na dom a jeho svetlú klinkerovo tehlovú fasádu so sklenenými čelami. Dom s plochou strechou prerušuje stromy a slúži ako svetielko medzi nimi po západe slnka. V teplých letných dňoch sa môžete kúpať vo veľkom bazéne a na zimné dni slúži svetlá slínková fasáda ako dobrá tepelná izolácia..

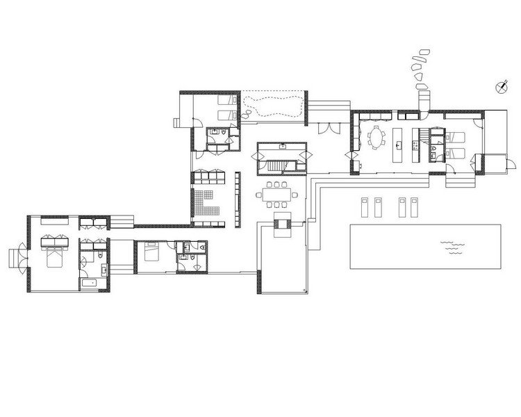
Dom navrhol architekt Toshihiro Oki a je koncipovaný ako miesto spoločenského stretávania pre majiteľa a jeho rodinu a priateľov. Vstup do domu, obývačka, jedáleň a kuchyňa zdieľajú spoločný priestor a sú považované za spoločenské centrum domu. Posuvné sklenené dvere spájajú tento otvorený priestor s terasou a záhradou a umožňujú bezproblémový prechod medzi interiérom a exteriérom. Dom a k nemu prislúchajúca záhrada s bazénom ponúkajú obyvateľom a ich hosťom veľa možností zábavy. Cez víkend si tam môžete oddýchnuť a zotaviť sa z dlhého pracovného týždňa.

Vnútri domu je celkom päť spální, každá s vlastnou kúpeľňou. Hostia si tak môžu udržať svoje súkromie. Okná od podlahy k stropu v každej spálni poskytujú prístup do vonkajšej oblasti a ponúkajú nádherný výhľad na okolie. Na druhom poschodí domu je iba jedna spálňa, ktorá má vlastnú strešnú terasu s baldachýnom a nádherný výhľad.

Svetlá fasáda slinku je vyrobená zo špeciálnych tehál, ktoré sú v zime odolné voči slanému, vlhkému vzduchu a chladu. Slúžia teda ako dobrá tepelná izolácia, ktorá prispieva k efektívnejšiemu vykurovaniu a chladeniu. Tehly nedodržiavajú presný vzor, a preto vytvárajú jedinečný vzhľad. V niektorých miestnostiach sa fasáda tiež spája do interiéru a v interiéri vytvára krásne akcenty.

Podlahy sú položené z travertínových dosiek z prírodného kameňa, pod ktorými je inštalované podlahové vykurovanie. To znamená, že dom je možné optimálne vykurovať na jeseň a v zime napriek okenným čelám. Travertín má navyše krásny, prirodzený vzhľad, ktorý nádherne harmonizuje so svetlými tehlami.
















* Projekt od Toshihiro Oki architekt
