Súčasný dom s dreveným obkladom od Studio 9one2

Kalifornská architektonická spoločnosť Studio 9one2 navrhla moderné sídlo Ettley. Predstavuje vyvážený vzťah medzi vnútorným a vonkajším. Úspešná syntéza prírodných materiálov dáva Dom s drevom Vytvorte si fasádu prvotriedneho vzhľadu, ktorý je trendový.
Moderný dom obložený drevom a sklom

Rezidencia je veľmi blízko pláže. Nehnuteľnosť, ktorá sa mierne zvažuje k oceánu, ponúka úchvatný panoramatický výhľad. Aby sa zvýraznilo jeho tesné spojenie s prírodou, bola to Ettley Dom s drevom a obložil veľa skla.
Dom s drevenou fasádou vyzerá teplý, ušľachtilý a dekoratívny

Drevené pásy vodorovne dodávajúce fasáde sochársku štruktúru. Vrcholom je vertikálna bambusová záhrada, ktorá je skrytá za drevenými pásmi na fasáde a dodáva nádvoriu ľahký zenový nádych. Sklenené fronty odrážajú azúrovo modrú vodu Pacifiku. Priehľadné sklenené podlahy ponúkajú výhľad do útulnej záhrady s jazierkom a patiom.
Exkluzívny dom je v noci jemne osvetlený

Kombinácia hliníka, dreva a skla tvorí v budove moderný súbor a vytvára uvoľnenú a príjemnú atmosféru miestnosti. Interiérový dizajn je jednoduchý, púta pozornosť iba jednotlivými prvkami vo výrazných farbách alebo s modernými vzormi.
Hravá stavebná konštrukcia s plochou strechou

Väčšina domov na pobreží LA má hlavný obytný priestor na najvyššom poschodí, takže majitelia a hostia si môžu vychutnať nádherný výhľad na oceán. Architekti zo Studio 9one2 sa pri navrhovaní obytných priestorov Ettley Residenz riadili rovnakým princípom.
Dom na pobreží Kalifornie

Dom s výhľadom na more sa vyznačuje kvalitnou drevenou fasádou

Hlavná obývacia izba v podkroví je na hornom poschodí

Podkrovná izba sa veľkoryso otvára von

Vkusné zariadenie v spálni

Biela okrúhla pohovka tvorí ústredný bod obývačky

Elegantná kombinácia prírodných materiálov

Stenový dizajn kúpeľne s drevenými lištami

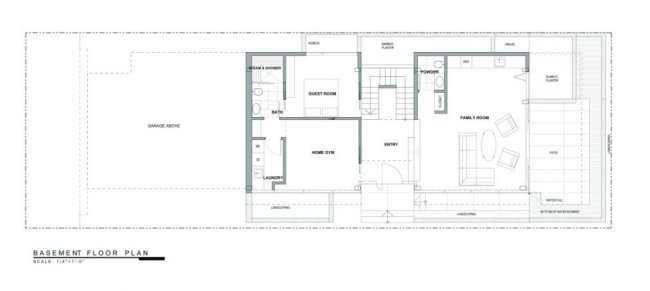
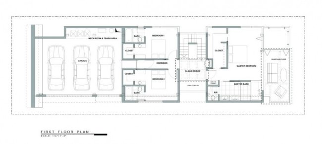
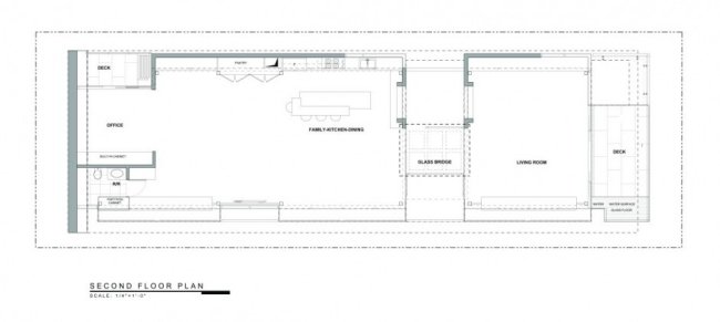
Dispozícia miestnosti v suteréne, prízemí a prvom poschodí



Domový model

